ホーム /各営業所おすすめ物件/東営業所

各営業所おすすめ物件

<<前へ

1745件中

1~20

次へ>>

チェックした物件をまとめて→

NEW!

おすすめ物件

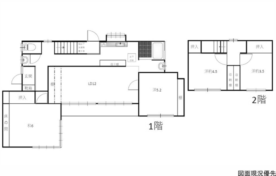
広島市東区中山新町3丁目

種別:
中古戸建

価格:3,080万円

土地:
213.01㎡ / 64.43坪
建物:
115.10㎡ / 34.81坪
所在地:
広島市東区中山新町3丁目
間取り:
4LDK+1S(納戸)
築年月:
2007年 11月
交通情報:
  • 芸備線「戸坂」駅 徒歩39分
  • 東浄小学校前バス停徒歩4分
  • 中山新町二丁目バス停徒歩8分

2026年04月16日 更新

人気の清風台!トータテハウジング施工の家!リノベーション済み!人気の4LDK!納戸等収納面も充実!ロフトがあるのもうれしい!あんしん既存瑕疵保険付き!内覧も可能ですお気軽にお問い合わせください!

おすすめ物件

安芸郡府中町清水ケ丘

種別:
中古戸建

価格:1,100万円

土地:
109.93㎡ / 33.25坪
建物:
72.18㎡ / 21.83坪
所在地:
安芸郡府中町清水ケ丘
間取り:
4DK
築年月:
1973年 7月
交通情報:
  • 芸備線「矢賀」駅 徒歩34分
  • 桜ヶ丘・清水ヶ丘団地入口バス停徒歩7分
  • 江本寺バス停徒歩12分

2026年04月15日 更新

緑豊かな閑静な住宅街にある中古住宅!リノベーションベースとして最適な物件!間取りは4DK!内覧も可能ですお気軽にお問い合わせください!

価格変更

おすすめ物件

安芸郡府中町桜ケ丘

種別:
中古戸建

価格:1,780万円

土地:
476.18㎡ / 144.04坪
建物:
137.65㎡ / 41.63坪
所在地:
安芸郡府中町桜ケ丘
間取り:
6LDK
築年月:
1968年 9月
交通情報:
  • 芸備線「矢賀」駅 徒歩37分
  • 山陽本線「天神川」駅 徒歩42分
  • みくまり三丁目バス停徒歩12分

2026年04月15日 更新

緑豊かな閑静な住宅街にある、敷地面積約144坪の土地が魅力の物件!リノベーションベースとして最適な物件!間取りは大家族にも対応可能な6LDK!広~いお庭で休日はBBQ!

価格変更

おすすめ物件

安芸郡熊野町中溝1丁目

種別:
土地

価格:800万円

土地:
1025.06㎡ / 310.08坪
所在地:
安芸郡熊野町中溝1丁目
交通情報:
  • 呉線「矢野」駅 徒歩99分
  • 熊野町役場前バス停徒歩5分
  • 熊野保育所前バス停徒歩6分

2026年04月15日 更新

緑豊かな閑静な住宅街にある土地!広~い敷地面積約398坪が魅力!事業用地などに最適!詳しくはお気軽にお問い合わせください!

おすすめ物件

広島市東区光が丘

種別:
土地

価格:4,100万円

土地:
136.95㎡ / 41.42坪
所在地:
広島市東区光が丘
交通情報:
  • 山陽本線「広島」駅 徒歩13分
  • 芸備線「矢賀」駅 徒歩36分
  • 広島駅新幹線口バス停徒歩10分

2026年04月15日 更新

緑豊かな閑静な住宅街にある土地!建築条件無のため、お好きなハウスメーカーさんにて建築可能です!JR広島駅や各商業施設が利用可能なのも◎!詳しくはお気軽にお問い合わせください!

おすすめ物件

広島市東区戸坂南1丁目

種別:
中古戸建

価格:1,200万円

土地:
85.49㎡ / 25.86坪
建物:
72.07㎡ / 21.8坪
所在地:
広島市東区戸坂南1丁目
間取り:
3LDK
築年月:
1977年 5月
交通情報:
  • 芸備線「戸坂」駅 徒歩25分
  • 広島高速交通アストラムライン「不動院前」駅 徒歩43分
  • 百田団地バス停徒歩6分

2026年04月15日 更新

緑豊かな閑静な住宅街にある中古住宅!過去にリフォーム歴有!間取りは3LDK!ご予約頂ければ内覧も可能です、お気軽にお問い合わせください!

おすすめ物件

広島市東区戸坂大上4丁目

種別:
事業用

価格:15,480万円

土地:
590.42㎡ / 178.6坪
建物・専有:
424.02㎡ / 128.26坪
所在地:
広島市東区戸坂大上4丁目
間取り:
-
築年月:
2015年 10月
交通情報:
  • 芸備線「戸坂」駅 徒歩24分
  • 広島高速交通アストラムライン「不動院前」駅 徒歩42分
  • 戸坂中学校バス停徒歩5分

2026年04月15日 更新

閑静な住宅街にある売アパート!オーナーチェンジ物件!レントロール等詳しくはお気軽にお問い合わせください!

価格変更

おすすめ物件

広島市東区戸坂大上4丁目

種別:
中古戸建

価格:3,780万円

土地:
183.63㎡ / 55.54坪
建物:
81.98㎡ / 24.79坪
所在地:
広島市東区戸坂大上4丁目
間取り:
3LDK
築年月:
2022年 6月
交通情報:
  • 芸備線「戸坂」駅 徒歩20分
  • 戸坂南二丁目バス停徒歩3分
  • 百田団地バス停徒歩4分

2026年04月15日 更新

築3年の美邸!人気の3LDK!今話題の平屋!広~い21帖のLDKが魅力!各居室CL等収納面も充実!JR戸坂駅や各商業施設が利用可能なのも◎!ご予約頂ければ内覧も可能です、お気軽にお問い合わせください!

おすすめ物件

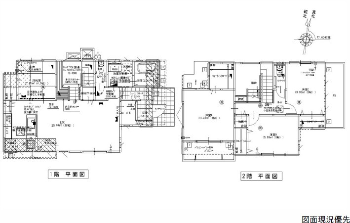
広島市東区戸坂新町2丁目

種別:
中古戸建

価格:2,500万円

土地:
436.80㎡ / 132.13坪
建物:
142.43㎡ / 43.08坪
所在地:
広島市東区戸坂新町2丁目
間取り:
5LDK+1S(納戸)
築年月:
2006年 11月
交通情報:
  • 芸備線「戸坂」駅 徒歩19分
  • 戸坂新町2丁目バス停徒歩4分
  • 東浄ショッピングセンター前バス停徒歩6分

2026年04月15日 更新

緑豊かな閑静な住宅街にある中古住宅!広~い敷地面積約132坪が魅力!間取りはゆとりの5LDK+S!駐車スペースは4台分有!内覧もご予約頂ければ内覧も可能です、お気軽にお問い合わせください!

おすすめ物件

呉市阿賀中央4丁目

種別:
新築戸建

価格:3,631万円

土地:
154.74㎡ / 46.8坪
建物:
109.30㎡ / 33.06坪
所在地:
呉市阿賀中央4丁目
間取り:
4LDK
築年月:
2026年 6月
交通情報:
  • 呉線「安芸阿賀」駅 徒歩7分
  • 小倉新開バス停徒歩2分
  • 阿賀駅前バス停徒歩3分

2026年04月15日 更新

ZEH水準+BELS評価取得+耐震等級3の家!人気の3LDK!畳スペースもうれしい!SIC・WIC等収納面も充実!JR安芸阿賀駅や各商業施設が利用可能なのも◎!詳しくはお気軽にお問い合わせください!

おすすめ物件

呉市阿賀中央4丁目

種別:
新築戸建

価格:3,645万円

土地:
147.93㎡ / 44.74坪
建物:
109.72㎡ / 33.19坪
所在地:
呉市阿賀中央4丁目
間取り:
3LDK+1S(納戸)
築年月:
2026年 6月
交通情報:
  • 呉線「安芸阿賀」駅 徒歩7分
  • 小倉新開バス停徒歩2分
  • 阿賀駅前バス停徒歩3分

2026年04月15日 更新

ZEH水準+BELS評価取得+耐震等級3の家!人気の3LDK!畳スペースもうれしい!WIC等収納面も充実!JR安芸阿賀駅や各商業施設が利用可能なのも◎!詳しくはお気軽にお問い合わせください!

おすすめ物件

安芸郡坂町小屋浦3丁目

種別:
新築戸建

価格:2,680万円

土地:
112.27㎡ / 33.96坪
建物:
103.27㎡ / 31.23坪
所在地:
安芸郡坂町小屋浦3丁目
間取り:
4LDK
築年月:
2026年 6月
交通情報:
  • 呉線「小屋浦」駅 徒歩6分
  • 小屋浦ふれあいセンター前バス停徒歩3分
  • 小屋浦一丁目バス停徒歩4分

2026年04月15日 更新

リナージュ坂町小屋浦3丁目!長期優良住宅!住宅性能表示W取得!耐震等級3+断熱等級5!間取りは人気の4LDK!畳コーナーがあるのも魅力!WIC等収納面充実!JR小屋浦駅や各商業施設が利用可能なのも◎!

おすすめ物件

広島市東区上温品4丁目

種別:
新築戸建

価格:2,380万円

土地:
98.40㎡ / 29.76坪
建物:
80.18㎡ / 24.25坪
所在地:
広島市東区上温品4丁目
間取り:
3LDK
築年月:
2026年 5月
交通情報:
  • 芸備線「戸坂」駅 徒歩55分
  • 上温品小学校入口バス停徒歩7分
  • 上温品北バス停徒歩6分

2026年04月15日 更新

緑豊かな閑静な住宅街にある新築住宅!省エネ性能ラベル+耐震等級3の家!間取りは人気の3LDK!南東向きのため陽当り良好!駐車スペースは2台分!詳しくはお気軽にお問い合わせください!

おすすめ物件

安芸郡府中町浜田本町

種別:
新築戸建

価格:5,950万円

土地:
130.48㎡ / 39.47坪
建物:
107.23㎡ / 32.43坪
所在地:
安芸郡府中町浜田本町
間取り:
4LDK
築年月:
2026年 4月
交通情報:
  • 山陽本線「天神川」駅 徒歩18分
  • 山陽本線「向洋」駅 徒歩22分
  • 浜田二丁目バス停徒歩1分

2026年04月14日 更新

人気エリア府中町浜田にある、ZEH水準省エネ新築住宅!安心の制振装置付き!人気の4LDK!SIC等収納面充実!JR向洋・天神川駅や各商業施設が利用可能!内覧も可能ですお気軽にお問い合わせください!

おすすめ物件

安芸郡府中町浜田本町

種別:
新築戸建

価格:5,380万円

土地:
91.59㎡ / 27.7坪
建物:
106.40㎡ / 32.18坪
所在地:
安芸郡府中町浜田本町
間取り:
4LDK
築年月:
2026年 4月
交通情報:
  • 山陽本線「天神川」駅 徒歩18分
  • 山陽本線「向洋」駅 徒歩22分
  • 浜田二丁目バス停徒歩1分

2026年04月14日 更新

人気エリア府中町浜田にある、ZEH水準省エネ新築住宅!安心の制振装置付き!人気の4LDK!SIC等収納面充実!JR向洋・天神川駅や各商業施設が利用可能!内覧も可能ですお気軽にお問い合わせください!

おすすめ物件

安芸郡府中町柳ケ丘

種別:
新築戸建

価格:3,998万円

土地:
94.59㎡ / 28.61坪
建物:
106.11㎡ / 32.09坪
所在地:
安芸郡府中町柳ケ丘
間取り:
4LDK
築年月:
2025年 7月
交通情報:
  • 山陽本線「向洋」駅 徒歩18分
  • 山陽本線「海田市」駅 徒歩27分
  • 柳ヶ丘東バス停徒歩2分

2026年04月14日 更新

カーサ・ヴェルディ府中町柳ヶ丘!人気の4LDK!各居室CL等収納面充実!ランドリールームやサンルームがあるのもうれしい!JR向洋駅や各商業施設が利用可能!内覧も可能ですお気軽にお問い合わせください!

おすすめ物件

広島市東区馬木3丁目

種別:
新築戸建

価格:2,980万円

土地:
224.39㎡ / 67.87坪
建物:
93.57㎡ / 28.3坪
所在地:
広島市東区馬木3丁目
間取り:
3LDK
築年月:
2025年 6月
交通情報:
  • 芸備線「上深川」駅 徒歩79分
  • 豊芝入口バス停徒歩4分
  • 西の畑バス停徒歩8分

2026年04月14日 更新

やすらぎヶ丘にある新築住宅!今話題の平屋!広~い敷地面積約67坪!人気の3LDK+ホビールーム!小屋裏物入等収納面も充実!地球にやさしいオール電化!内覧も可能ですお気軽にお問い合わせください!

おすすめ物件

呉市本通6丁目

種別:
新築戸建

価格:3,980万円

土地:
107.33㎡ / 32.46坪
建物:
116.76㎡ / 35.31坪
所在地:
呉市本通6丁目
間取り:
4LDK
築年月:
2025年 11月
交通情報:
  • 呉線「呉」駅 徒歩23分
  • 呉線「川原石」駅 徒歩47分
  • 本通5丁目バス停徒歩4分

2026年04月14日 更新

ZEH水準省エネ新築住宅!角地のため陽当り良好!人気の4LDK!WIC等収納面も充実!書斎があるのもGOOD!地球にやさしいオール電化!JR呉駅や各商業施設が利用可能!内覧も可能ですお気軽にお問い合わせください!

価格変更

おすすめ物件

広島市東区福田8丁目

種別:
新築戸建

価格:2,097万円

土地:
166.03㎡ / 50.22坪
建物:
115.93㎡ / 35.06坪
所在地:
広島市東区福田8丁目
間取り:
4LDK
築年月:
2025年 5月
交通情報:
  • 芸備線「上深川」駅 徒歩38分
  • 五月ヶ丘バス停徒歩9分
  • 寺分北バス停徒歩11分

2026年04月14日 更新

緑豊かな閑静な住宅街にある、ルルーディア福田8丁目!間取りは人気の4LDK!広~い17帖のLDKが魅力!SIC・WIC等収納面も充実!内覧も可能ですお気軽にお問い合わせください!

価格変更

おすすめ物件

安芸郡府中町柳ケ丘

種別:
土地

価格:3,280万円

土地:
185.94㎡ / 56.24坪
所在地:
安芸郡府中町柳ケ丘
交通情報:
  • 山陽本線「向洋」駅 徒歩18分
  • 山陽本線「天神川」駅 徒歩25分
  • 府中永田バス停徒歩5分

2026年04月14日 更新

緑豊かな閑静な住宅街にある土地!建築条件無のため、お好きなハウスメーカーさんにて建築可能です!JR向洋駅や各商業施設が利用可能なのも◎!詳しくはお気軽にお問い合わせください!

チェックした物件をまとめて→

<<前へ

1745件中

1~20

次へ>>

なかなか物件が見つからない方必見!

こちらから物件の希望条件を入力して送るだけ!
条件に合った物件をお探しして、返信します!

物件探しを依頼

トップへ戻る