ホーム / 買う / 新築戸建 /山県郡北広島町春木 A号棟
通話無料0120-412-760
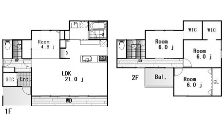
間取り図
Copyright TOTATE Co.,Ltd.All rights reserved.
お洒落で機能的な間取りのデザインハウスです!開放感のある角住戸!
収納充実、 ひろ~い21LDKは対面キッチン、カップボード付、リビングからのウッドデッキがおすすめ新築戸建♪
資料請求・ご見学などお気軽にお問い合わせください。

通話無料0120-412-760
| 所在地 | 山県郡北広島町春木管理コード:CC35017-A | 土地面積 | 212.96㎡(64.42坪) |
|---|---|---|---|
| 価格 | 2,850万円 | 建物面積 | 111.78㎡(33.81坪) |
| 間取り |
4LDK 1F/LDK 21.0帖 1室 1F/和室 4.8帖 1室 2F/洋室 6.0帖 3室 |
||
| 交通 | 八重新地バス停徒歩4分 | 学区 |
小学校:八重小学校 中学校:千代田中学校 |
| 築年月 | 2024年 1月 | 用途地域 | 第一種住居 |
| 構造 | 木造 | 取引態様 | 仲介 |
| 確認番号 | 第R05認広建セ00884号 | 建ぺい率 | 60% |
| 容積率 | 200% | 現状 | 完成済み |
| 引渡し | 即時 | 設備 |
水道:公営水道 トイレ:公共下水 |
| 道路 |
南西向き 公道 幅員:6.0m 北西向き 公道 |
セットバック | - |
| 駐車場 | 有 3台 | 更新日 | 2026年01月13日 UP! |
| 備考 |
※省エネ・安全性を実感できるオール電化 ※4LDK ※省エネルギー対策 ※駐車3台可 ※対面システムキッチン ※浴室乾燥機 ※全居室収納 ※角地 ※シャワー付洗面化粧台 ※浴室1坪以上 ※温水洗浄便座 ※ウォークインクローゼット ※IHクッキングヒーター ※デザイナーズハウス |
スマホに 情報を送る |
QRコードを読み取って、 |
陽当り良好閑静な住宅地デザイナーズバリアフリー眺望良好フローリング公営水道公共下水オール電化24時間換気システム食器洗乾燥機システムキッチン対面式キッチン追焚機能浴室浴室乾燥機温水洗浄便座トイレ2ヶ所ウォークインクロゼット収納豊富TVモニタ付インターホン複層ガラスディンプルキー住戸内覧可能平坦地LDK18帖以上
この物件の
取扱い店舗
国土交通大臣 (8) 第004315号
北営業所
広島県広島市安佐南区緑井5丁目10-16
「ホームページを見た」と問合せてください
通話無料 0120-412-760
この物件を購入した場合の、月々の支払
い価格の一例です。借り入れを保証する
ものではございません。
円/月
円/年2回
※諸費用は別途必要です。