ホーム / 買う / 新築戸建 /廿日市市対厳山2丁目 1号棟
通話無料0120-521-722
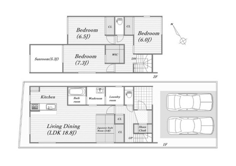
間取り図
Copyright TOTATE Co.,Ltd.All rights reserved.
1階にはランドリールーム、2階にはサンルームを設置。
共働き家庭に嬉しいオール電化の設計です。広々とした18.8帖のリビングでゆったりと過ごせます。前面道路は広く、駐車スペースは2台分確保可能です。














通話無料0120-521-722
| 所在地 | 廿日市市対厳山2丁目管理コード:BB-35779-1 | 土地面積 | 155.95㎡(47.17坪) |
|---|---|---|---|
| 価格 | 2,997万円 | 建物面積 | 120.07㎡(36.32坪) |
| 間取り |
4LDK 1F/LDK 18.8帖 1室 1F/和室 3.0帖 1室 2F/洋室 7.3帖 1室 2F/洋室 6.5帖 1室 2F/洋室 6.0帖 1室 |
||
| 交通 |
グリーンハイツバス停徒歩4分 山陽本線「宮島口」駅 徒歩15分 広島電鉄宮島線「広電宮島口」駅 徒歩17分 |
学区 |
小学校:大野東小学校 中学校:大野東中学校 |
| 築年月 | 2025年 2月 | 用途地域 | 第一種低層住居専用 |
| 構造 | 木造 | 取引態様 | 仲介 |
| 確認番号 | - | 建ぺい率 | 50% |
| 容積率 | 80% | 現状 | 完成済み |
| 引渡し | 即時 | 設備 | - |
| 道路 | 南東向き | セットバック | - |
| 駐車場 | 有 2台 | 更新日 | 2026年03月10日 UP! |
| 備考 |
●リビングは広々18.8帖 ●2階には5.3帖のサンルーム ●オール電化 ●シューズインクローク ●ランドリールーム ●システムキッチン ●対面キッチン ●食器洗浄乾燥機 ●IHクッキングヒーター ●シャワー付洗面化粧台 ●勝手口 ●床下収納 ●浴室1坪以上 ●TVモニター付インターホン ●エコキュート |
スマホに 情報を送る |
QRコードを読み取って、 |
閑静な住宅地オール電化食器洗乾燥機システムキッチン対面式キッチン温水洗浄便座トイレ2ヶ所浴室1坪以上床下収納ウォークインクロゼットTVモニタ付インターホン住戸内覧可能LDK18帖以上完成済み
この物件の
取扱い店舗
国土交通大臣 (8) 第004315号
西営業所
広島県広島市佐伯区五日市中央4丁目10-11
「ホームページを見た」と問合せてください
通話無料 0120-521-722
この物件を購入した場合の、月々の支払
い価格の一例です。借り入れを保証する
ものではございません。
円/月
円/年2回
※諸費用は別途必要です。