通話無料0120-521-722
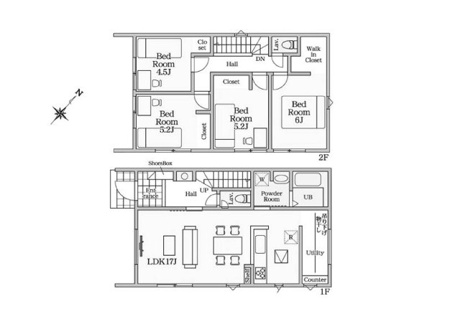
間取り図
Copyright TOTATE Co.,Ltd.All rights reserved.
リナージュ宮内 4LDK+S 住宅性能評価W取得+長期優良住宅
南西角地の陽当たり良好な4LDK。洗面所近くのユーティリティルームに室内物干しを設置し、家事動線に配慮した快適な住まいです。
様々な住宅の性能をわかりやすく表示し、良質な住宅を安心して取得できる市場を形成するためにつくられました。耐震性は最も高い3級となります。













通話無料0120-521-722
| 所在地 | 廿日市市宮内管理コード:BB-35690 | 土地面積 | 149.30㎡(45.16坪) |
|---|---|---|---|
| 価格 | 3,280万円 | 建物面積 | 99.36㎡(30.05坪) |
| 間取り |
4LDK 1F/LDK 17.0帖 1室 2F/洋室 6.0帖 1室 2F/洋室 5.2帖 2室 2F/洋室 4.5帖 1室 |
||
| 交通 | 畑口バス停徒歩3分 | 学区 |
小学校:宮内小学校 中学校:野坂中学校 |
| 築年月 | 2025年 7月 | 用途地域 | 第一種住居 |
| 構造 | 木造 | 取引態様 | 仲介 |
| 確認番号 | 第R06認広建セ02619号 | 建ぺい率 | 60% |
| 容積率 | 200% | 現状 | 完成済み |
| 引渡し | 即時 | 設備 |
水道:公営水道 トイレ:個別浄化槽 ガス:プロパンガス |
| 道路 |
南西向き 公道 幅員:4.9m 南東向き 公道 幅員:7.0m |
セットバック | - |
| 駐車場 | 有 2台 | 更新日 | 2026年03月07日 UP! |
| 備考 |
●長期優良住宅 ●住宅性能表示W取得(設計性能+建設性能) ●耐震等級3 ●断熱等級6 ●LED照明(玄関・廊下・キッチン等) ●浴室換気乾燥機 宅配BOX完備 ●定期点検実施 ●フラット35S利用の場合、適合証明取得費用(88,000円税込) |
スマホに 情報を送る |
QRコードを読み取って、 |
建設住宅性能評価書付プロパンガス公営水道個別浄化槽システムキッチン対面式キッチン浴室乾燥機温水洗浄便座トイレ2ヶ所ウォークインクロゼットTVモニタ付インターホン宅配ボックス住戸内覧可能完成済み
この物件の
取扱い店舗
国土交通大臣 (8) 第004315号
西営業所
広島県広島市佐伯区五日市中央4丁目10-11
「ホームページを見た」と問合せてください
通話無料 0120-521-722
この物件を購入した場合の、月々の支払
い価格の一例です。借り入れを保証する
ものではございません。
円/月
円/年2回
※諸費用は別途必要です。