通話無料0120-521-722
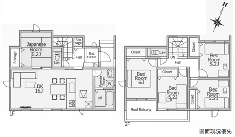
間取り図
Copyright TOTATE Co.,Ltd.All rights reserved.
住宅性能評価書取得+長期優良住宅のW取得。耐震等級3を取得した安心の住まいです。駐車3台可能な5LDK物件。
角地につき陽当たり・眺望良好です。前面道路は交通量が少なく、幅員約6mで駐車もしやすい立地です。
1階は16.2帖のLDKと5.2帖の和室があり、開放感のある間取りとなっています。




















通話無料0120-521-722
| 所在地 | 廿日市市阿品台北管理コード:BB-36835 | 土地面積 | 219.29㎡(66.33坪) |
|---|---|---|---|
| 価格 | 3,880万円 | 建物面積 | 107.81㎡(32.61坪) |
| 間取り |
5LDK 1F/LDK 16.0帖 1室 1F/和室 5.2帖 1室 2F/洋室 6.0帖 1室 2F/洋室 5.2帖 3室 |
||
| 交通 |
阿品台北中央バス停徒歩1分 山陽本線「阿品」駅 徒歩29分 広島電鉄宮島線「阿品東」駅 徒歩30分 |
学区 |
小学校:阿品台東小学校 中学校:阿品台中学校 |
| 築年月 | 2026年 4月 | 用途地域 | 第一種低層住居専用 |
| 構造 | 木造 | 取引態様 | 仲介 |
| 確認番号 | 第R07SHC124436号 | 建ぺい率 | 50% |
| 容積率 | 100% | 現状 | 未完成 |
| 引渡し | 2026年4月下旬 | 設備 |
水道:公営水道 トイレ:公共下水 ガス:都市ガス |
| 道路 |
北東向き 公道 幅員:6.0m 南西向き 公道 幅員:13.0m |
セットバック | - |
| 駐車場 | 有 3台 | 更新日 | 2026年02月27日 UP! |
| 備考 |
●長期優良住宅 ●住宅性能表示W取得(設計性能+建設性能) ●耐震等級3 ●断熱等級6 ●LED照明(玄関・廊下・キッチン等) ●浴室換気乾燥機 ●宅配BOX完備 ●定期点検実施 ●北側2.6m認定外道路(車通行不可) ●フラット35S利用の場合、適合証明取得費用(88,000円税込) ●駐車3台可(車種による) |
スマホに 情報を送る |
QRコードを読み取って、 |
閑静な住宅地建設住宅性能評価書付眺望良好バルコニー都市ガス公営水道公共下水システムキッチン対面式キッチン浴室乾燥機温水洗浄便座トイレ2ヶ所TVモニタ付インターホン宅配ボックス
この物件の
取扱い店舗
国土交通大臣 (8) 第004315号
西営業所
広島県広島市佐伯区五日市中央4丁目10-11
「ホームページを見た」と問合せてください
通話無料 0120-521-722
この物件を購入した場合の、月々の支払
い価格の一例です。借り入れを保証する
ものではございません。
円/月
円/年2回
※諸費用は別途必要です。