ホーム / 買う / 新築戸建 /廿日市市大野字水口 2号棟
通話無料0120-521-722
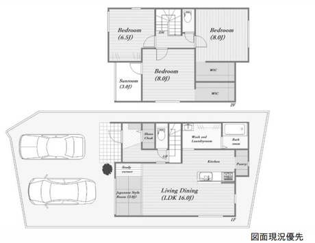
間取り図
Copyright TOTATE Co.,Ltd.All rights reserved.
16帖のLDKに3帖和室を備えた、ゆとりのある間取りです。
洗面脱衣場も広く、生活利便性の高い住まいで、サンルーム付きなのも魅力です。
駐車は2台可能。大野東小学校が近く、子育て世代におすすめの物件です。


















通話無料0120-521-722
| 所在地 | 廿日市市大野字水口管理コード:BB-36796-2 | 土地面積 | 138.58㎡(41.92坪) |
|---|---|---|---|
| 価格 | 2,887万円 | 建物面積 | 111.37㎡(33.68坪) |
| 間取り |
4LDK 1F/LDK 16.0帖 1室 1F/和室 3.0帖 1室 2F/洋室 8.0帖 2室 2F/洋室 6.5帖 1室 |
||
| 交通 |
大野東小学校バス停徒歩4分 山陽本線「前空」駅 徒歩20分 |
学区 |
小学校:大野東小学校 中学校:大野東中学校 |
| 築年月 | 2025年 12月 | 用途地域 | 第一種住居 |
| 構造 | 木造 | 取引態様 | 仲介 |
| 確認番号 | 第R07認広建セ00553号 | 建ぺい率 | 60% |
| 容積率 | 200% | 現状 | 完成済み |
| 引渡し | 即時 | 設備 |
水道:公営水道 トイレ:浄化槽排水 |
| 道路 | 北西向き | セットバック | - |
| 駐車場 | 有 2台 | 更新日 | 2026年02月16日 UP! |
| 備考 |
●シューズクロークやパントリーなど収納豊富な4LDK ●オール電化 ●エコキュート ●IHクッキングヒーター ●サンルーム ●シューズインクローク ●TVモニター付インターフォン ●ウォークインクローゼット ●ランドリールーム ●対面式システムキッチン ●パントリー ●食器洗浄乾燥機 ●床下収納 ●南ひな段 |
スマホに 情報を送る |
QRコードを読み取って、 |
公営水道浄化槽排水オール電化食器洗乾燥機システムキッチン対面式キッチン温水洗浄便座トイレ2ヶ所床下収納ウォークインクロゼットTVモニタ付インターホン住戸内覧可能完成済み
この物件の
取扱い店舗
国土交通大臣 (8) 第004315号
西営業所
広島県広島市佐伯区五日市中央4丁目10-11
「ホームページを見た」と問合せてください
通話無料 0120-521-722
この物件を購入した場合の、月々の支払
い価格の一例です。借り入れを保証する
ものではございません。
円/月
円/年2回
※諸費用は別途必要です。