通話無料0120-521-722
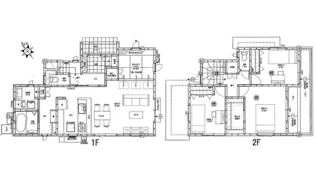
間取り図
Copyright TOTATE Co.,Ltd.All rights reserved.












通話無料0120-521-722
| 所在地 | 大竹市玖波3丁目管理コード:BB-34816-2 | 土地面積 | 193.57㎡(58.55坪) |
|---|---|---|---|
| 価格 | 2,480万円 | 建物面積 | 100.60㎡(30.43坪) |
| 間取り |
3LDK 1F/LDK 17.5帖 1室 1F/その他 3.7帖 1室 2F/洋室 7.2帖 1室 2F/洋室 5.2帖 2室 |
||
| 交通 |
山陽本線「玖波」駅 徒歩6分 玖波駅バス停徒歩6分 |
学区 |
小学校:玖波小学校 中学校:玖波中学校 |
| 築年月 | 2025年 4月 | 用途地域 | 第一種住居 |
| 構造 | 木造 | 取引態様 | 仲介 |
| 確認番号 | 第R06認広建セ01079号 | 建ぺい率 | 60% |
| 容積率 | 200% | 現状 | 完成済み |
| 引渡し | 即時 | 設備 |
水道:公営水道 トイレ:公共下水 |
| 道路 | 南東向き 公道 幅員:3.2m | セットバック | - |
| 駐車場 | 有 4台 | 更新日 | 2026年05月09日 UP! |
| 備考 |
●オール電化(エコキュート) ●シューズクローク ●パントリー ●ウォークインクローゼット ●ファミリークローゼット ●玄関ドア電気錠 ●Low-Eペアガラス(アルゴンガス入り) ●アルミ樹脂複合サッシ ●洗面化粧台(W=900mm LED照明) ●保温浴槽(フラットラインLED照明) ●3.7帖小上がりタタミコーナー ●宅配BOX ●EV充電用コンセント ●ワイドバルコニー ●スロップシンク ●No.1との間に共有地有 ●セットバック後面積:188.61㎡ ●ZEH水準省エネ住宅・フラット35S(金利Aプラン)仕様 |
スマホに 情報を送る |
QRコードを読み取って、 |
バルコニー公営水道公共下水オール電化システムキッチン対面式キッチン温水洗浄便座トイレ2ヶ所ウォークインクロゼットTVモニタ付インターホン宅配ボックス複層ガラス住戸内覧可能平坦地完成済み
この物件の
取扱い店舗
国土交通大臣 (8) 第004315号
西営業所
広島県広島市佐伯区五日市中央4丁目10-11
「ホームページを見た」と問合せてください
通話無料 0120-521-722
この物件を購入した場合の、月々の支払
い価格の一例です。借り入れを保証する
ものではございません。
円/月
円/年2回
※諸費用は別途必要です。