通話無料0120-521-722
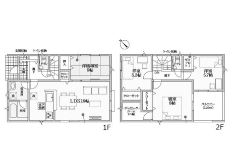
間取り図
Copyright TOTATE Co.,Ltd.All rights reserved.
住宅性能評価取得、安心の耐震等級3の4LDK+S。国道2号線に面した利便性の高い立地です。1階は16帖のLDKに5帖の居室を配置。約4.4帖の広々バルコニー付きで、生活利便性も良好です。












通話無料0120-521-722
| 所在地 | 大竹市玖波2丁目管理コード:BB-36703 | 土地面積 | 216.81㎡(65.58坪) |
|---|---|---|---|
| 価格 | 2,380万円 | 建物面積 | 103.27㎡(31.23坪) |
| 間取り |
4LDK 1F/LDK 16.0帖 1室 1F/和室 5.0帖 1室 2F/洋室 8.0帖 1室 2F/洋室 5.7帖 1室 2F/洋室 5.2帖 1室 |
||
| 交通 |
山陽本線「玖波」駅 徒歩5分 玖波駅バス停徒歩5分 |
学区 |
小学校:玖波小学校 中学校:玖波中学校 |
| 築年月 | 2026年 3月 | 用途地域 | 近隣商業 |
| 構造 | 木造 | 取引態様 | 仲介 |
| 確認番号 | 第R07SHC121807号 | 建ぺい率 | 80% |
| 容積率 | 300% | 現状 | 完成済み |
| 引渡し | 即時 | 設備 |
水道:公営水道 トイレ:公共下水 |
| 道路 |
北西向き 公道 幅員:6.4m 南東向き 公道 幅員:11.0m |
セットバック | - |
| 駐車場 | 有 4台 | 更新日 | 2026年04月14日 UP! |
| 備考 |
●耐震等級3 ●省エネ性能ラベルあり ●安心のオール電化 ●人気の対面キッチン ●交通アクセス良好の立地 ●浸水想定区域 ●本物件北西側に石碑あり ●ルーフバルコニーを除いた建物面積:95.98㎡ ●住宅性能評価取得 ●システムキッチン ●浴室乾燥機 ●防犯カメラ ●エコキュート ●シャワー付洗面化粧台 ●TVモニター付インターホン ●シャワートイレ |
スマホに 情報を送る |
QRコードを読み取って、 |
バルコニー公営水道公共下水オール電化システムキッチン対面式キッチン浴室乾燥機温水洗浄便座トイレ2ヶ所TVモニタ付インターホン住戸内覧可能平坦地完成済み
この物件の
取扱い店舗
国土交通大臣 (8) 第004315号
西営業所
広島県広島市佐伯区五日市中央4丁目10-11
「ホームページを見た」と問合せてください
通話無料 0120-521-722
この物件を購入した場合の、月々の支払
い価格の一例です。借り入れを保証する
ものではございません。
円/月
円/年2回
※諸費用は別途必要です。