ホーム / 買う / 新築戸建 /尾道市美ノ郷町三成 1号棟
通話無料0120-013-226
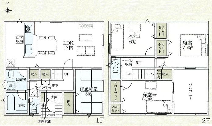
間取り図
Copyright TOTATE Co.,Ltd.All rights reserved.
閑静な新興住宅団地内で住環境良好です!間口が広く駐車3台可能!暮らしやすい4LDKです!

















通話無料0120-013-226
| 所在地 | 尾道市美ノ郷町三成管理コード:EE36128-1 | 土地面積 | 171.82㎡(51.97坪) |
|---|---|---|---|
| 価格 | 2,477万円 | 建物面積 | 108.54㎡(32.83坪) |
| 間取り |
4LDK 1F/LDK 17.0帖 1室 1F/和室 5.0帖 1室 2F/洋室 7.5帖 1室 2F/洋室 6.7帖 1室 2F/洋室 6.0帖 1室 |
||
| 交通 |
三成〔尾道営業所〕バス停徒歩5分 美ノ郷温泉口バス停徒歩6分 |
学区 |
小学校:尾道市立 三成小学校 中学校:尾道市立美木中学校 |
| 築年月 | 2026年 1月 | 用途地域 | 無指定 |
| 構造 | 木造 | 取引態様 | 仲介 |
| 確認番号 | 第R07SHC113241号 | 建ぺい率 | 60% |
| 容積率 | 200% | 現状 | 未完成 |
| 引渡し | 2026年2月下旬 | 設備 |
水道:公営水道 トイレ:浄化槽排水 ガス:プロパンガス |
| 道路 |
一方 南向き 公道 幅員:6.0m |
セットバック | - |
| 駐車場 | 有 3台 | 更新日 | 2026年01月13日 UP! |
| 備考 |
◇------◆ 耐震 + 制震の家、QUIE(クワイエ) ◆------◇ ■引渡後無料点検実施(6ヶ月・2年・5年・10年の計4回) ■住宅性能評価取得(4分野6項目取得) ■全自動お湯張り機能・浴室乾燥機 ・複層ガラス・カードキー・温水便座 ・システムキッチン(浄水器一体型水栓) ・換気暖房乾燥機付きユニットバス ・玄関、廊下LEDライト使用 ・各居室クローゼットなどの収納 ◇-----◇---------◇---------◇---------◇--------◇--------◇ |
スマホに 情報を送る |
QRコードを読み取って、 |
陽当り良好閑静な住宅地建設住宅性能評価書付室内洗濯機置場バルコニープロパンガス公営水道浄化槽排水ガスコンロコンロ2口以上システムキッチン対面式キッチンコンロ3口浴室乾燥機温水洗浄便座トイレ2ヶ所浴室1坪以上床下収納TVモニタ付インターホン複層ガラス防犯カメラ平坦地
この物件の
取扱い店舗
国土交通大臣 (8) 第004315号
東広島営業所
広島県東広島市西条中央6丁目12-18
「ホームページを見た」と問合せてください
通話無料 0120-013-226
この物件を購入した場合の、月々の支払
い価格の一例です。借り入れを保証する
ものではございません。
円/月
円/年2回
※諸費用は別途必要です。