通話無料0120-412-730
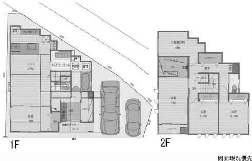
間取り図
Copyright TOTATE Co.,Ltd.All rights reserved.
閑静な住宅街にある新築住宅!ZEH水準省エネ住宅+省令準耐火構造!間取りは人気の4LDK!小屋裏収納等、収納面も充実!地球にやさしいオール電化!詳しくはお気軽にお問い合わせください!
















通話無料0120-412-730
| 所在地 | 呉市伏原2丁目管理コード:EE35761 | 土地面積 | 100.52㎡(30.4坪) |
|---|---|---|---|
| 価格 | 3,980万円 | 建物面積 | 107.51㎡(32.52坪) |
| 間取り |
4LDK 1F/LDK 15.0帖 1室 1F/和室 5.0帖 1室 2F/洋室 7.0帖 1室 2F/洋室 5.3帖 2室 |
||
| 交通 |
伏原2丁目バス停徒歩3分 呉線「呉」駅 徒歩30分 |
学区 |
小学校:明立小学校 中学校:東畑中学校 |
| 築年月 | 2025年 3月 | 用途地域 | 第一種中高層住居専用 |
| 構造 | 木造 | 取引態様 | 仲介 |
| 確認番号 | - | 建ぺい率 | 60% |
| 容積率 | 200% | 現状 | 完成済み |
| 引渡し | 即時 | 設備 |
水道:公営水道 トイレ:公共下水 |
| 道路 |
南東向き 幅員:5.4m 北西向き 幅員:3.4m |
セットバック | - |
| 駐車場 | 有 2台 | 更新日 | 2026年05月20日 UP! |
| 備考 |
●住マイルハウス ●旧呉市内中心部 ●オール電化 ●近づけば玄関ドア自動解錠(鍵所持者) ●広いランドリールーム ●壁掛けテレビ用フル装備(補強壁、コンセント、端子、HDMIコード、壁掛金具、BC/CSアンテナ) ●前面道路5.4mで駐車が簡単 ●全部屋東南向き ●屋根裏部屋有(5LDK変更可) ●ZEH水準省エネ住宅 ●フラット35S A利用可 ●省令準耐火建築 ●水道負担金15万円・10年保証11万円別途必要 ●景観法による規制有 |
スマホに 情報を送る |
QRコードを読み取って、 |
公営水道公共下水オール電化24時間換気システムシステムキッチン対面式キッチン屋根裏収納複層ガラス完成済み
この物件の
取扱い店舗
国土交通大臣 (8) 第004315号
東営業所
広島県安芸郡府中町大須1丁目17-12
「ホームページを見た」と問合せてください
通話無料 0120-412-730
この物件を購入した場合の、月々の支払
い価格の一例です。借り入れを保証する
ものではございません。
円/月
円/年2回
※諸費用は別途必要です。