ホーム / 買う / 新築戸建 /広島市佐伯区五日市町大字美鈴園 3号棟
通話無料0120-521-722
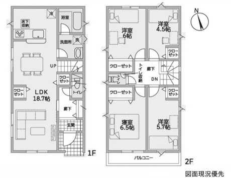
間取り図
Copyright TOTATE Co.,Ltd.All rights reserved.
住宅性能評価取得、耐震等級3の高品質住宅。
制振装置SAFE365を採用し、地震対策も安心です。
南向きの明るい立地で、前面道路6mのため駐車がしやすく、2台駐車可能です。
間取りは 4LDK。LDKに収納を2か所設けており、収納力の高い住まいです。

















通話無料0120-521-722
| 所在地 | 広島市佐伯区五日市町大字美鈴園管理コード:BB-36705-3 | 土地面積 | 101.91㎡(30.82坪) |
|---|---|---|---|
| 価格 | 3,730万円 | 建物面積 | 96.18㎡(29.09坪) |
| 間取り |
4LDK 1F/LDK 18.7帖 1室 2F/洋室 6.5帖 1室 2F/洋室 6.0帖 1室 2F/洋室 5.7帖 1室 2F/洋室 4.5帖 1室 |
||
| 交通 |
山陽本線「五日市」駅 徒歩23分 広島電鉄宮島線「広電五日市」駅 徒歩24分 広島電鉄宮島線「修大協創中高前」駅 徒歩26分 |
学区 | 中学校:五日市中学校 |
| 築年月 | 2026年 4月 | 用途地域 | 第一種住居 |
| 構造 | 木造 | 取引態様 | 仲介 |
| 確認番号 | 第R07SHC123370号 | 建ぺい率 | 60% |
| 容積率 | 200% | 現状 | 未完成 |
| 引渡し | 2026年4月下旬 | 設備 |
トイレ:公共下水 ガス:都市ガス |
| 道路 | 南向き 公道 幅員:5.9m | セットバック | - |
| 駐車場 | 有 2台 | 更新日 | 2026年02月28日 UP! |
| 備考 |
●引渡後無料点検実施(6ヶ月・2年・5年・10年の計4回) ●住宅性能評価取得(4分野6項目取得) ●フラット35S(金利Aタイプ)利用可能(発行費用等不要) ●ポーチを除いた建物面積:95.57㎡ ●駐車:2台可能(車種による) |
スマホに 情報を送る |
QRコードを読み取って、 |
閑静な住宅地建設住宅性能評価書付カードキーバルコニー都市ガス公共下水システムキッチン対面式キッチン浴室乾燥機温水洗浄便座トイレ2ヶ所床下収納TVモニタ付インターホン複層ガラスLDK18帖以上リビング階段
この物件の
取扱い店舗
国土交通大臣 (8) 第004315号
西営業所
広島県広島市佐伯区五日市中央4丁目10-11
「ホームページを見た」と問合せてください
通話無料 0120-521-722
この物件を購入した場合の、月々の支払
い価格の一例です。借り入れを保証する
ものではございません。
円/月
円/年2回
※諸費用は別途必要です。