ホーム / 買う / 新築戸建 /広島市佐伯区八幡東2丁目 1号棟
通話無料0120-521-722
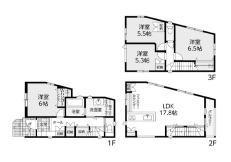
間取り図
Copyright TOTATE Co.,Ltd.All rights reserved.
都市型の3階建て住宅で、駐車スペースは3台分確保。
洗面脱衣所には物干しスペースを配置し、家事動線を考慮した間取りです。
リビングにはファミリーカウンターを設置しており、お子様がリビングで勉強できる工夫が施されています。



















通話無料0120-521-722
| 所在地 | 広島市佐伯区八幡東2丁目管理コード:BB-35855-1 | 土地面積 | 91.82㎡(27.77坪) |
|---|---|---|---|
| 価格 | 2,898万円 | 建物面積 | 100.00㎡(30.25坪) |
| 間取り |
4LDK 1F/洋室 6.0帖 1室 1F/LDK 17.8帖 1室 2F/洋室 6.5帖 1室 2F/洋室 5.5帖 1室 2F/洋室 5.3帖 1室 |
||
| 交通 | 中地上バス停徒歩3分 | 学区 |
小学校:八幡東小学校 中学校:三和中学校 |
| 築年月 | 2024年 11月 | 用途地域 | 第二種中高層住居専用 |
| 構造 | 木造 | 取引態様 | 仲介 |
| 確認番号 | - | 建ぺい率 | 60% |
| 容積率 | 160% | 現状 | 完成済み |
| 引渡し | 即時 | 設備 |
トイレ:公共下水 ガス:都市ガス |
| 道路 | 西向き 私道 幅員:4.0m | セットバック | - |
| 駐車場 | 有 3台 | 更新日 | 2026年02月27日 UP! |
| 備考 |
●収納充実 ●洗面に物干しスペース完備 ●前面道路4m ●エコジョーズ採用 ●位置指定道路 ●カーサ・ヴェルディ八幡東2丁目 ●住宅瑕疵担保保険料別途10万円 ●並列駐車3台可能 |
スマホに 情報を送る |
QRコードを読み取って、 |
バルコニー都市ガス公共下水食器洗乾燥機システムキッチン対面式キッチン温水洗浄便座トイレ2ヶ所TVモニタ付インターホン住戸内覧可能完成済み
この物件の
取扱い店舗
国土交通大臣 (8) 第004315号
西営業所
広島県広島市佐伯区五日市中央4丁目10-11
「ホームページを見た」と問合せてください
通話無料 0120-521-722
この物件を購入した場合の、月々の支払
い価格の一例です。借り入れを保証する
ものではございません。
円/月
円/年2回
※諸費用は別途必要です。