ホーム / 買う / 新築戸建 /広島市佐伯区八幡1丁目 6号棟
通話無料0120-521-722
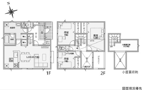
間取り図
Copyright TOTATE Co.,Ltd.All rights reserved.
3LDK+S。住宅性能評価取得、耐震等級3で安心の住まい。
LDKは広々16.75帖、小屋裏収納有。
未完成ですが、モデルハウスにてご見学可能です。




















通話無料0120-521-722
| 所在地 | 広島市佐伯区八幡1丁目管理コード:BB-36722-6 | 土地面積 | 113.94㎡(34.46坪) |
|---|---|---|---|
| 価格 | 3,580万円 | 建物面積 | 101.25㎡(30.62坪) |
| 間取り |
3LDK 1F/LDK 16.7帖 1室 2F/洋室 7.5帖 1室 2F/洋室 6.0帖 1室 2F/洋室 5.0帖 1室 |
||
| 交通 | 保井田バス停徒歩6分 | 学区 |
小学校:八幡小学校 中学校:城山中学校 |
| 築年月 | 2026年 5月 | 用途地域 | 第一種住居 |
| 構造 | 木造 | 取引態様 | 仲介 |
| 確認番号 | 第R07SHC120996号 | 建ぺい率 | 60% |
| 容積率 | 171% | 現状 | 未完成 |
| 引渡し | 2026年5月下旬 | 設備 |
水道:公営水道 トイレ:公共下水 ガス:都市ガス |
| 道路 | 東向き 私道 幅員:4.2m | セットバック | - |
| 駐車場 | 有 3台 | 更新日 | 2026年02月11日 UP! |
| 備考 |
●耐震等級3 ●省エネ性能ラベルあり ●人気の対面キッチン ●豊富な収納スペース ●広々LDK ●商業施設近隣に多数あり ●日々の生活に便利な立地 ●位置指定道路持分有 ●住宅性能評価取得 ●システムキッチン ●浴室乾燥機 ●防犯カメラ ●シャワー付洗面化粧台 ●TVモニター付インターホン ●シャワートイレ ●4.25帖小屋裏収納 ●ルーフバルコニーを除いた建物面積:96.39㎡ ●駐車3台可(車種による) ●協定道路覚書あり |
スマホに 情報を送る |
QRコードを読み取って、 |
閑静な住宅地バルコニー都市ガス公営水道公共下水システムキッチン対面式キッチン浴室乾燥機温水洗浄便座トイレ2ヶ所床下収納TVモニタ付インターホン防犯カメラ平坦地
この物件の
取扱い店舗
国土交通大臣 (8) 第004315号
西営業所
広島県広島市佐伯区五日市中央4丁目10-11
「ホームページを見た」と問合せてください
通話無料 0120-521-722
この物件を購入した場合の、月々の支払
い価格の一例です。借り入れを保証する
ものではございません。
円/月
円/年2回
※諸費用は別途必要です。