通話無料0120-412-730
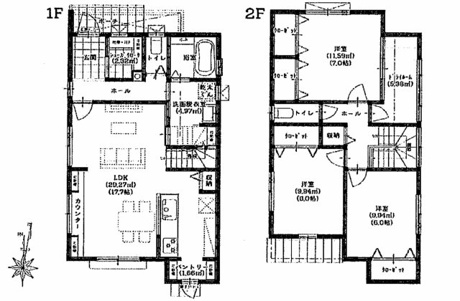
間取り図
Copyright TOTATE Co.,Ltd.All rights reserved.
ZEH水準省エネ住宅!省令準耐火構造+断熱等級5!人気の3LDK!SIC等収納充実!衣類乾燥機・乾太くん標準!駐車場も並列2台分有!JR矢野駅も利用可能!内覧も可能ですお気軽にお問い合わせください!


















通話無料0120-412-730
| 所在地 | 広島市安芸区矢野東6丁目管理コード:EE4728 | 土地面積 | 122.49㎡(37.05坪) |
|---|---|---|---|
| 価格 | 3,180万円 | 建物面積 | 103.92㎡(31.43坪) |
| 間取り |
3LDK 1F/LDK 17.7帖 1室 2F/洋室 7.0帖 1室 2F/洋室 6.0帖 2室 |
||
| 交通 |
矢野東バス停徒歩1分 矢野祇園バス停徒歩5分 呉線「矢野」駅 徒歩14分 |
学区 |
小学校:矢野小学校 中学校:矢野中学校 |
| 築年月 | 2024年 12月 | 用途地域 | 第一種住居 |
| 構造 | 木造 | 取引態様 | 仲介 |
| 確認番号 | - | 建ぺい率 | 60% |
| 容積率 | 160% | 現状 | 完成済み |
| 引渡し | 即時 | 設備 |
水道:公営水道 トイレ:公共下水 ガス:都市ガス |
| 道路 | 北向き 公道 幅員:3.5m | セットバック | - |
| 駐車場 | 有 2台 | 更新日 | 2026年05月15日 UP! |
| 備考 |
●省令準耐火構造 ●断熱等級5 ●施工:木住販売(株) ●乾太くん(ガス衣類乾燥機)付 ●ZEH水準省エネ住宅(性能向上計画認定住宅) ●水道負担金:137,500円、瑕疵担保保険:80,000円別途要す |
スマホに 情報を送る |
QRコードを読み取って、 |
都市ガス公営水道公共下水システムキッチン対面式キッチントイレ2ヶ所複層ガラス
この物件の
取扱い店舗
国土交通大臣 (8) 第004315号
東営業所
広島県安芸郡府中町大須1丁目17-12
「ホームページを見た」と問合せてください
通話無料 0120-412-730
この物件を購入した場合の、月々の支払
い価格の一例です。借り入れを保証する
ものではございません。
円/月
円/年2回
※諸費用は別途必要です。