ホーム / 買う / 新築戸建 /広島市西区田方2丁目 1号棟
通話無料0120-521-722
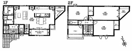
間取り図
Copyright TOTATE Co.,Ltd.All rights reserved.
3LDK+ホビールーム。遊び心のあるホビールームとLDKをつなげれば、開放的な大空間として利用できます。駐車2台可能です。
















通話無料0120-521-722
| 所在地 | 広島市西区田方2丁目管理コード:AA-5600-1 | 土地面積 | 120.70㎡(36.51坪) |
|---|---|---|---|
| 価格 | 3,463.75万円 | 建物面積 | 100.72㎡(30.46坪) |
| 間取り |
3LDK 1F/LDK 17.0帖 1室 2F/洋室 8.0帖 1室 2F/洋室 7.0帖 1室 2F/洋室 6.0帖 1室 |
||
| 交通 |
田方バス停徒歩8分 広島電鉄宮島線「草津」駅 徒歩14分 山陽本線「新井口」駅 徒歩23分 |
学区 |
小学校:古田台小学校 中学校:古田中学校 |
| 築年月 | 2025年 1月 | 用途地域 | 第一種住居 |
| 構造 | 木造 | 取引態様 | 仲介 |
| 確認番号 | - | 建ぺい率 | 60% |
| 容積率 | 200% | 現状 | 完成済み |
| 引渡し | 即時 | 設備 |
水道:公営水道 トイレ:公共下水 |
| 道路 | 南東向き 公道 幅員:5.1m | セットバック | - |
| 駐車場 | 有 2台 | 更新日 | 2026年03月08日 UP! |
| 備考 |
●オール電化住宅 ●耐震等級5 ●施工:木住販売(株) ●省令準耐火構造 ●南向きバルコニー ●ZEH水準省エネ住宅(性能向上計画認定住宅) ●水道負担金:137,500円 ●瑕疵担保保険:80,000円別途要す |
スマホに 情報を送る |
QRコードを読み取って、 |
バルコニー公営水道公共下水オール電化食器洗乾燥機システムキッチン対面式キッチンアイランドキッチン温水洗浄便座トイレ2ヶ所ウォークインクロゼットTVモニタ付インターホン住戸内覧可能リビング階段完成済み
この物件の
取扱い店舗
国土交通大臣 (8) 第004315号
西営業所
広島県広島市佐伯区五日市中央4丁目10-11
「ホームページを見た」と問合せてください
通話無料 0120-521-722
この物件を購入した場合の、月々の支払
い価格の一例です。借り入れを保証する
ものではございません。
円/月
円/年2回
※諸費用は別途必要です。