通話無料0120-521-722
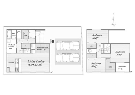
間取り図
Copyright TOTATE Co.,Ltd.All rights reserved.
1階にはランドリールーム、2階にはサンルームを設置。
共働き家庭に嬉しいオール電化の設計です。広々とした17.8帖のリビングでゆったりと過ごせます。前面道路は広く、駐車スペースは4台分確保可能です。











通話無料0120-521-722
| 所在地 | 広島市西区山田新町1丁目管理コード:AA-36691 | 土地面積 | 203.53㎡(61.56坪) |
|---|---|---|---|
| 価格 | 3,496万円 | 建物面積 | 115.51㎡(34.94坪) |
| 間取り |
4LDK 1F/LDK 17.8帖 1室 1F/和室 3.0帖 1室 2F/洋室 8.0帖 1室 2F/洋室 6.8帖 1室 2F/洋室 6.0帖 1室 |
||
| 交通 | 山田団地バス停徒歩6分 | 学区 |
小学校:山田小学校 中学校:古田中学校 |
| 築年月 | 2025年 3月 | 用途地域 | 第一種低層住居専用 |
| 構造 | 木造 | 取引態様 | 仲介 |
| 確認番号 | - | 建ぺい率 | 50% |
| 容積率 | 100% | 現状 | 完成済み |
| 引渡し | 即時 | 設備 |
水道:公営水道 トイレ:公共下水 |
| 道路 | 東向き | セットバック | - |
| 駐車場 | 有 4台 | 更新日 | 2026年02月27日 UP! |
| 備考 |
●17.8帖の広々としたリビングがあるデザイナーズ住宅です ●オール電化 ●サンルーム ●ランドリールーム ●シューズインクローク ●システムキッチン ●パントリー ●対面キッチン ●食器洗浄乾燥機 ●IHクッキングヒーター ●床下収納 ●エコキュート ●TVモニター付インターフォン ●ウォークインクローゼット |
スマホに 情報を送る |
QRコードを読み取って、 |
閑静な住宅地公営水道公共下水オール電化食器洗乾燥機システムキッチン
この物件の
取扱い店舗
国土交通大臣 (8) 第004315号
西営業所
広島県広島市佐伯区五日市中央4丁目10-11
「ホームページを見た」と問合せてください
通話無料 0120-521-722
この物件を購入した場合の、月々の支払
い価格の一例です。借り入れを保証する
ものではございません。
円/月
円/年2回
※諸費用は別途必要です。