通話無料0120-521-722
間取り図
Copyright TOTATE Co.,Ltd.All rights reserved.
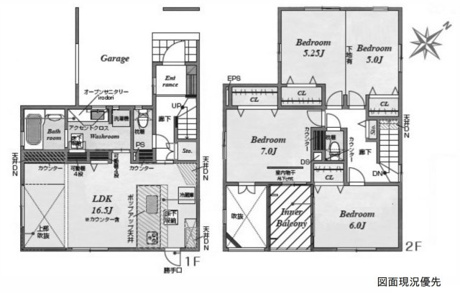
都市型2階建ての可変式3LDK(間仕切り対応で4LDKへ変更可能)。
ライフスタイルの変化に合わせて柔軟に間取り変更が可能です。制振ダンパーを搭載し、最高ランクの耐震等級3を取得しています。
1階は16帖のLDKに明るさと開放感を高める吹抜けを採用。洗面脱衣所はゆとりある広さに、可動棚を設け家事動線にも配慮しました。
2階にはインナーバルコニーを備え、子育て世代から幅広い世帯におすすめの住まいです




















通話無料0120-521-722
| 所在地 | 広島市西区草津東2丁目管理コード:AA-36819 | 土地面積 | 109.72㎡(33.19坪) |
|---|---|---|---|
| 価格 | 5,490万円 | 建物面積 | 124.66㎡(37.7坪) |
| 間取り |
3LDK 1F/LDK 16.5帖 1室 2F/洋室 10.2帖 1室 2F/洋室 7.0帖 1室 2F/洋室 6.0帖 1室 |
||
| 交通 |
広島電鉄宮島線「草津」駅 徒歩3分 広島電鉄宮島線「草津南」駅 徒歩10分 山陽本線「新井口」駅 徒歩18分 |
学区 |
小学校:草津小学校 中学校:庚午中学校 |
| 築年月 | 2026年 5月 | 用途地域 | 第一種住居 |
| 構造 | 木造 | 取引態様 | 仲介 |
| 確認番号 | 第R07SHC127402号 | 建ぺい率 | 60% |
| 容積率 | 200% | 現状 | 未完成 |
| 引渡し | 2026年5月下旬 | 設備 |
水道:公営水道 トイレ:公共下水 |
| 道路 | 北西向き 公道 幅員:4.0m | セットバック | - |
| 駐車場 | 有 2台 | 更新日 | 2026年02月27日 UP! |
| 備考 |
●制振ダンパー ●耐震等級3の住宅性能評価 ●長期優良住宅 ●エネルギー消費性能星3つ ●LED照明(玄関・廊下・キッチン等) ●無料点検実施(引渡後3ヶ月・2年・5年・10年) ●オール電化 ●食洗乾燥機 ●浴室換気乾燥機 ●樹脂複合サッシ ●収納充実プラン ●表記建物面積に車庫部分13.04㎡・貯水槽部分0.45㎡・インナーバルコニー4.96㎡・玄関ポーチ4.14㎡含む |
スマホに 情報を送る |
QRコードを読み取って、 |
閑静な住宅地バルコニー公営水道公共下水オール電化食器洗乾燥機システムキッチン対面式キッチン浴室乾燥機温水洗浄便座トイレ2ヶ所床下収納TVモニタ付インターホン平坦地
この物件の
取扱い店舗
国土交通大臣 (8) 第004315号
西営業所
広島県広島市佐伯区五日市中央4丁目10-11
「ホームページを見た」と問合せてください
通話無料 0120-521-722
この物件を購入した場合の、月々の支払
い価格の一例です。借り入れを保証する
ものではございません。
円/月
円/年2回
※諸費用は別途必要です。