ホーム / 買う / 新築戸建 /広島市南区宇品御幸3丁目 4号棟
通話無料0120-333-222
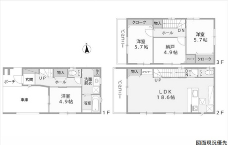
間取り図
Copyright TOTATE Co.,Ltd.All rights reserved.
ビルトインガレージは雨の日も車が汚れずに綺麗に保てます!電停徒歩圏内でお出かけにも便利な立地ですね♪




















通話無料0120-333-222
| 所在地 | 広島市南区宇品御幸3丁目管理コード:AA-35387-4 | 土地面積 | 56.90㎡(17.21坪) |
|---|---|---|---|
| 価格 | 4,493.75万円 | 建物面積 | 115.40㎡(34.9坪) |
| 間取り |
3LDK+1S(納戸) 2F/LDK 18.6帖 1室 1F/洋室 4.9帖 1室 3F/洋室 5.7帖 2室 3F/S 4.9帖 1室 |
||
| 交通 |
広島電鉄宇品線「宇品四丁目」駅 徒歩4分 広島電鉄宇品線「宇品三丁目」駅 徒歩4分 広島電鉄宇品線「宇品五丁目」駅 徒歩6分 |
学区 |
小学校:宇品小学校 中学校:宇品中学校 |
| 築年月 | 2024年 9月 | 用途地域 | 第一種住居 |
| 構造 | 木造 | 取引態様 | 仲介 |
| 確認番号 | - | 建ぺい率 | 60% |
| 容積率 | 200% | 現状 | 完成済み |
| 引渡し | 即時 | 設備 |
水道:公営水道 トイレ:公共下水 ガス:都市ガス |
| 道路 | 西向き 公道 幅員:5.3m | セットバック | - |
| 駐車場 | 有 1台 | 更新日 | 2026年03月10日 UP! |
| 備考 |
●断熱等級4 ●フラット35S金利Bタイプ対応 ●外壁は防火サイディング ●ガス給湯(エコジョーズ採用) ●システムキッチン・対面キッチン ●LDKが約18.6帖 ●ビルトインガレージ(車を雨から守ります) ●駐車場1台可(車種による) ●水道負担金:137,500円要す |
スマホに 情報を送る |
QRコードを読み取って、 |
陽当り良好フローリングバルコニー都市ガス公営水道公共下水ビルトガレージ食器洗乾燥機システムキッチン対面式キッチンカウンターキッチン浴室乾燥機温水洗浄便座洗面台トイレ2ヶ所ユニットバス浴槽TVモニタ付インターホンディンプルキー平坦地LDK18帖以上完成済み
この物件の
取扱い店舗
国土交通大臣 (8) 第004315号
本店営業部
広島県広島市中区国泰寺町2丁目4-7 トータテビル 2F
「ホームページを見た」と問合せてください
通話無料 0120-333-222
この物件を購入した場合の、月々の支払
い価格の一例です。借り入れを保証する
ものではございません。
円/月
円/年2回
※諸費用は別途必要です。