ホーム / 買う / 新築戸建 /広島市南区宇品御幸1丁目 B号棟
通話無料0120-333-222
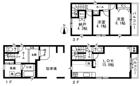
間取り図
Copyright TOTATE Co.,Ltd.All rights reserved.
【宇品御幸1丁目 ゆめタウン広島徒歩圏内!】県病院前電停徒歩14分です。ビルトインガレージの物件です。




















通話無料0120-333-222
| 所在地 | 広島市南区宇品御幸1丁目管理コード:AA-35206-B | 土地面積 | 50.15㎡(15.17坪) |
|---|---|---|---|
| 価格 | 4,680万円 | 建物面積 | 95.84㎡(28.99坪) |
| 間取り |
2LDK+1S(納戸) 2F/LDK 15.6帖 1室 3F/洋室 6.1帖 1室 3F/洋室 4.1帖 1室 3F/S 4.3帖 1室 |
||
| 交通 |
千田廟公園前県病院入口バス停徒歩1分 広島電鉄宇品線「広大附属学校前」駅 徒歩4分 広島電鉄宇品線「県病院前」駅 徒歩6分 |
学区 |
小学校:宇品小学校 中学校:宇品中学校 |
| 築年月 | 2025年 11月 | 用途地域 | 第一種住居 |
| 構造 | 木造 | 取引態様 | 仲介 |
| 確認番号 | 第JE25BA1-34-0083号 | 建ぺい率 | 60% |
| 容積率 | 200% | 現状 | 完成済み |
| 引渡し | 即時 | 設備 |
水道:公営水道 トイレ:公共下水 ガス:都市ガス |
| 道路 | 東向き | セットバック | - |
| 駐車場 | 有 | 更新日 | 2026年03月10日 UP! |
| 備考 |
●水道負担金・住宅瑕疵保険料別途20万要 ●別途駐車場部分8.28平米有 ●準防火地域 |
スマホに 情報を送る |
QRコードを読み取って、 |
陽当り良好閑静な住宅地フローリングバルコニー都市ガス公営水道公共下水ビルトガレージ食器洗乾燥機システムキッチン浴室乾燥機温水洗浄便座洗面台洗髪洗面化粧台トイレ2ヶ所ユニットバス浴槽TVモニタ付インターホン複層ガラス平坦地
この物件の
取扱い店舗
国土交通大臣 (8) 第004315号
本店営業部
広島県広島市中区国泰寺町2丁目4-7 トータテビル 2F
「ホームページを見た」と問合せてください
通話無料 0120-333-222
この物件を購入した場合の、月々の支払
い価格の一例です。借り入れを保証する
ものではございません。
円/月
円/年2回
※諸費用は別途必要です。