ホーム / 買う / 新築戸建 /広島市南区向洋新町2丁目 2号棟
通話無料0120-412-730
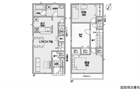
間取り図
Copyright TOTATE Co.,Ltd.All rights reserved.
向洋ニュータウン洋光台にある新築住宅!耐震等級3+省エネ性能ラベル付!間取りは2LDK+S!各居室CL等収納面充実!駐車場は並列2台分有!団地内に商業施設や向洋新町小学校も有り利便性もGOOD!

















通話無料0120-412-730
| 所在地 | 広島市南区向洋新町2丁目管理コード:AA36834-2 | 土地面積 | 97.62㎡(29.53坪) |
|---|---|---|---|
| 価格 | 4,180万円 | 建物面積 | 87.48㎡(26.46坪) |
| 間取り |
2LDK+1S(納戸) 1F/LDK 16.7帖 1室 2F/洋室 8.0帖 1室 2F/洋室 6.0帖 1室 2F/S 6.0帖 1室 |
||
| 交通 |
向洋新町三丁目バス停徒歩2分 大原神社前バス停徒歩3分 山陽本線「向洋」駅 徒歩24分 |
学区 |
小学校:向洋新町小学校 中学校:大州中学校 |
| 築年月 | 2026年 6月 | 用途地域 | 第二種中高層住居専用 |
| 構造 | 木造 | 取引態様 | 仲介 |
| 確認番号 | 第R07SHC126342号 | 建ぺい率 | 60% |
| 容積率 | 200% | 現状 | 未完成 |
| 引渡し | 2026年6月下旬 | 設備 |
水道:公営水道 トイレ:公共下水 ガス:都市ガス |
| 道路 | 南東向き 公道 幅員:6.2m | セットバック | - |
| 駐車場 | 有 2台 | 更新日 | 2026年05月20日 UP! |
| 備考 |
●耐震等級3 ●省エネ性能ラベルあり ●人気の対面キッチン ●豊富な収納スペース ●広々LDK ●みらいエコ住宅補助(35万)対象物件(諸条件有) ●小学校徒歩圏内でお子様の通学にも便利な立地 ●越境物あり(覚書取得済) ●住宅性能評価取得 ●システムキッチン ●浴室乾燥機 ●防犯カメラ ●シャワー付洗面化粧台 ●TVモニター付インターホン ●シャワートイレ ●網戸・シャッター・カーテンレール等についてはオプション工事 |
スマホに 情報を送る |
QRコードを読み取って、 |
閑静な住宅地バルコニー都市ガス公営水道公共下水システムキッチン対面式キッチン浴室乾燥機温水洗浄便座トイレ2ヶ所TVモニタ付インターホン
この物件の
取扱い店舗
国土交通大臣 (8) 第004315号
東営業所
広島県安芸郡府中町大須1丁目17-12
「ホームページを見た」と問合せてください
通話無料 0120-412-730
この物件を購入した場合の、月々の支払
い価格の一例です。借り入れを保証する
ものではございません。
円/月
円/年2回
※諸費用は別途必要です。