ホーム / 買う / 新築戸建 /広島市南区堀越2丁目 A号棟
通話無料0120-412-730
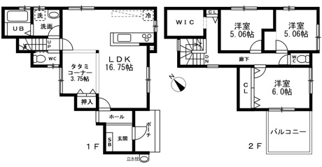
間取り図
Copyright TOTATE Co.,Ltd.All rights reserved.
閑静な住宅街にある新築住宅!人気の4LDK!1階に和室があるのもうれしい!納戸等収納面も充実!駐車場は2台分有!JR向洋駅や各商業施設が利用可能!内覧も可能ですお気軽にお問い合わせください!















通話無料0120-412-730
| 所在地 | 広島市南区堀越2丁目管理コード:AA36838-A | 土地面積 | 138.66㎡(41.94坪) |
|---|---|---|---|
| 価格 | 3,480万円 | 建物面積 | 96.47㎡(29.18坪) |
| 間取り |
4LDK+1S(納戸) 1F/LDK 16.7帖 1室 1F/和室 3.7帖 1室 2F/洋室 6.0帖 1室 2F/洋室 5.0帖 2室 2F/S 1室 |
||
| 交通 |
東堀越バス停徒歩6分 山陽本線「向洋」駅 徒歩15分 山陽本線「海田市」駅 徒歩21分 |
学区 |
小学校:青崎小学校 中学校:大州中学校 |
| 築年月 | 2023年 5月 | 用途地域 | 第一種住居 |
| 構造 | 木造 | 取引態様 | 仲介 |
| 確認番号 | 第R04認広建セ01256号 | 建ぺい率 | 60% |
| 容積率 | 160% | 現状 | 完成済み |
| 引渡し | 即時 | 設備 |
水道:公営水道 トイレ:公共下水 ガス:都市ガス |
| 道路 | 南東向き 幅員:2.9m | セットバック | 済 |
| 駐車場 | 有 2台 | 更新日 | 2026年05月20日 UP! |
| 備考 |
●近隣にショッピング施設が多数あり、日常生活に便利です(サンドラッグ広島堀越店徒歩4分、アルゾ青崎店徒歩7分、ダイレックス青崎店8分) ●「東堀越」バス停まで徒歩6分と近く、通勤にも便利な立地 ●準防火地域 ●セットバック済 |
スマホに 情報を送る |
QRコードを読み取って、 |
バルコニー都市ガス公営水道公共下水24時間換気システムシステムキッチン対面式キッチン温水洗浄便座トイレ2ヶ所TVモニタ付インターホン複層ガラスディンプルキー完成済み
この物件の
取扱い店舗
国土交通大臣 (8) 第004315号
東営業所
広島県安芸郡府中町大須1丁目17-12
「ホームページを見た」と問合せてください
通話無料 0120-412-730
この物件を購入した場合の、月々の支払
い価格の一例です。借り入れを保証する
ものではございません。
円/月
円/年2回
※諸費用は別途必要です。