ホーム / 買う / 新築戸建 /広島市南区向洋新町3丁目 1号棟
通話無料0120-412-730
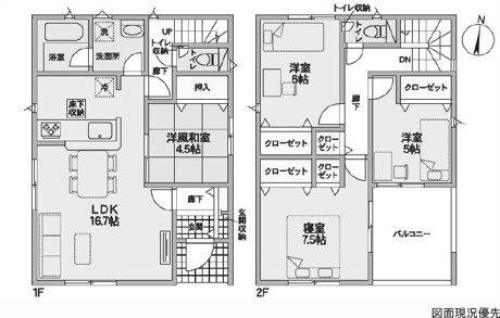
間取り図
Copyright TOTATE Co.,Ltd.All rights reserved.
クレイドルガーデン向洋新町!耐震等級3+省エネ性能ラベル付!東南角地・陽当り良好!人気の4LDK!団地内に商業施設や向洋新町小学校が有り利便性も◎!内覧も可能ですお気軽にお問い合わせください!



















通話無料0120-412-730
| 所在地 | 広島市南区向洋新町3丁目管理コード:AA36783-1 | 土地面積 | 118.10㎡(35.72坪) |
|---|---|---|---|
| 価格 | 4,680万円 | 建物面積 | 105.29㎡(31.85坪) |
| 間取り |
4LDK 1F/LDK 16.7帖 1室 1F/和室 4.5帖 1室 2F/洋室 7.5帖 1室 2F/洋室 6.0帖 1室 2F/洋室 5.0帖 1室 |
||
| 交通 |
向洋新町車庫バス停徒歩1分 山陽本線「向洋」駅 徒歩26分 |
学区 |
小学校:向洋新町小学校 中学校:大州中学校 |
| 築年月 | 2025年 11月 | 用途地域 | 第二種中高層住居専用 |
| 構造 | 木造 | 取引態様 | 仲介 |
| 確認番号 | 第R07SHC109622号 | 建ぺい率 | 70% |
| 容積率 | 200% | 現状 | 完成済み |
| 引渡し | 即時 | 設備 |
水道:公営水道 トイレ:公共下水 ガス:都市ガス |
| 道路 |
南向き 公道 幅員:10.0m 東向き 幅員:6.2m |
セットバック | - |
| 駐車場 | 有 2台 | 更新日 | 2026年03月08日 UP! |
| 備考 |
●近隣に公園があり子育て世代にもピッタリ ●閑静な住宅街で住環境良好 ●耐震等級3 ●省エネ性能ラベルあり ●ルーフバルコニーを除いた建物面積:96.78㎡ ●フロアコーティング施工済(LDK部分) ●住宅性能評価取得 ●システムキッチン ●浴室乾燥機 ●防犯カメラ ●シャワー付き洗面化粧台 ●TVモニター付インターホン ●シャワートイレ ●網戸・シャッター・カーテンレール等についてはオプション工事 |
スマホに 情報を送る |
QRコードを読み取って、 |
閑静な住宅地バルコニールーフバルコニー都市ガス公営水道公共下水システムキッチン対面式キッチン浴室乾燥機温水洗浄便座トイレ2ヶ所TVモニタ付インターホン完成済み
この物件の
取扱い店舗
国土交通大臣 (8) 第004315号
東営業所
広島県安芸郡府中町大須1丁目17-12
「ホームページを見た」と問合せてください
通話無料 0120-412-730
この物件を購入した場合の、月々の支払
い価格の一例です。借り入れを保証する
ものではございません。
円/月
円/年2回
※諸費用は別途必要です。