通話無料0120-412-730
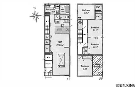
間取り図
Copyright TOTATE Co.,Ltd.All rights reserved.
ブルーミングガーデン向洋新町!長期優良住宅!制振ダンパー+耐震等級3!人気の3LDK!ゆとりの20.8帖LDK!WIC等収納面も充実!団地内に小学校+商業施設有!詳しくはお気軽にお問い合わせください!


















通話無料0120-412-730
| 所在地 | 広島市南区向洋新町1丁目管理コード:AA36686 | 土地面積 | 158.01㎡(47.79坪) |
|---|---|---|---|
| 価格 | 4,690万円 | 建物面積 | 114.42㎡(34.61坪) |
| 間取り |
3LDK 1F/LDK 20.8帖 1室 2F/洋室 10.5帖 1室 2F/洋室 5.2帖 2室 |
||
| 交通 |
洋光台団地バス停徒歩5分 山陽本線「向洋」駅 徒歩26分 |
学区 |
小学校:向洋新町小学校 中学校:大州中学校 |
| 築年月 | 2026年 5月 | 用途地域 | 第二種中高層住居専用 |
| 構造 | 木造 | 取引態様 | 仲介 |
| 確認番号 | 第R07SHC125292号 | 建ぺい率 | 60% |
| 容積率 | 200% | 現状 | 完成済み |
| 引渡し | 即時 | 設備 |
水道:公営水道 トイレ:公共下水 ガス:都市ガス |
| 道路 | 南向き 公道 幅員:6.2m | セットバック | - |
| 駐車場 | 有 2台 | 更新日 | 2026年05月20日 UP! |
| 備考 |
●制振ダンパー ●耐震等級3の住宅性能評価 ●長期優良住宅 ●エネルギー消費性能星3つ ●無料点検実施(引渡後3ヶ月・2年・5年・10年) ●食洗乾燥機 ●浴室換気乾燥機 ●LED照明(玄関・廊下・キッチン等) ●収納充実プラン ●樹脂複合サッシ ●網戸はオプション(全窓125,000円税込) ●電子契約手数料5,000円税込(契約印紙不要) ●表記建物面積にバルコニー約6.98平米含む ●みらいエコ対象(75万円) |
スマホに 情報を送る |
QRコードを読み取って、 |
バルコニー都市ガス公営水道公共下水食器洗乾燥機対面式キッチン浴室乾燥機トイレ2ヶ所ウォークインクロゼットLDK18帖以上完成済み
この物件の
取扱い店舗
国土交通大臣 (8) 第004315号
東営業所
広島県安芸郡府中町大須1丁目17-12
「ホームページを見た」と問合せてください
通話無料 0120-412-730
この物件を購入した場合の、月々の支払
い価格の一例です。借り入れを保証する
ものではございません。
円/月
円/年2回
※諸費用は別途必要です。