ホーム / 買う / 中古マンション /東広島市西条町寺家 Jcity西条
通話無料0120-013-226
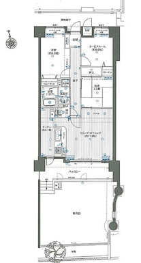
間取り図
Copyright TOTATE Co.,Ltd.All rights reserved.
2025年10月リフォーム完了!使用料無料の専用庭がついています!



















通話無料0120-013-226
| 所在地 | 東広島市西条町寺家管理コード:EM45080 | 専有面積 | 69.42㎡(20.99坪) |
|---|---|---|---|
| 価格 | 2,780万円 | バルコニー面積 | 11.01㎡ |
| 間取り |
2LDK+1S(納戸) 1F/LDK 15.9帖 1室 1F/洋室 6.0帖 1室 1F/和室 4.5帖 1室 1F/S 5.0帖 1室 |
用途地域 | 第一種住居 |
| 学区 |
小学校:龍王小学校 中学校:西条中学校 |
取引態様 | 仲介 |
| 交通 |
山陽本線「西条」駅 徒歩17分 山陽本線「寺家」駅 徒歩24分 |
築年月 | 2002年 3月 |
| 構造 | 鉄骨鉄筋コンクリート | 建ぺい率 | - |
| 容積率 | - | 現状 | 空家 |
| 引渡し | 相談 | 設備 | - |
| 道路 | - | マンション | Jcity西条 10階建 1階 |
| 駐車場 | 空有 | 月額負担金 | 管理費・共益費/9,700円 修繕積立金/12,200円 |
| 更新日 | 2026年03月06日 UP! | ||
| 備考 |
【2025年10月リフォーム完了】 キッチン、ユニットバス、洗濯機防水パン、 温水洗浄機能付トイレ、シャワー付洗面化粧台、 フローリング・クロス貼替、建具、 ダウンライト、ハウスクリーニング 和室の畳は半帖タイプに変更しております ■2017年8月大規模修繕工事実施 ■オートロック 専用庭 駐輪場 宅配ボックス ■あんしん既存住宅売買瑕疵保険付 ■専用庭面積:34.99㎡(約10.58坪)・使用料無料 ■駐車場:屋内平面(継承可) 区画No.17 |
スマホに 情報を送る |
QRコードを読み取って、 |
陽当り良好システムキッチン温水洗浄便座ユニットバス平坦地
この物件の
取扱い店舗
国土交通大臣 (8) 第004315号
東広島営業所
広島県東広島市西条中央6丁目12-18
「ホームページを見た」と問合せてください
通話無料 0120-013-226
この物件を購入した場合の、月々の支払
い価格の一例です。借り入れを保証する
ものではございません。
円/月
円/年2回
※諸費用は別途必要です。