ホーム / 買う / 中古マンション /広島市南区大州1丁目 エスパス大州通り 801
通話無料0120-412-730
間取り図
Copyright TOTATE Co.,Ltd.All rights reserved.
エスパス大州通り!リノベーション後お引渡し物件!高層階・3方角部屋のため陽当り良好!間取りは人気の3LDK!JR天神川駅や各商業施設が利用可能なのも◎!内覧も可能ですお気軽にお問い合わせください!


















通話無料0120-412-730
| 所在地 | 広島市南区大州1丁目管理コード:AM45712 | 専有面積 | 67.25㎡(20.34坪) |
|---|---|---|---|
| 価格 | 4,180万円 | バルコニー面積 | - |
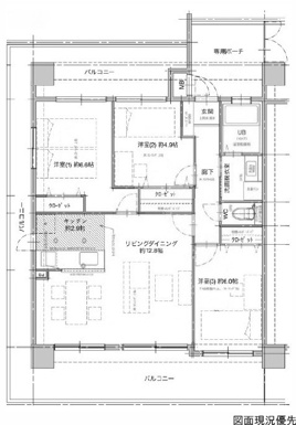
| 間取り |
3LDK LD 12.8帖 1室K 2.9帖 1室洋室 6.6帖 1室洋室 6.0帖 1室洋室 4.9帖 1室 |
用途地域 | 近隣商業 |
| 学区 |
小学校:大州小学校 中学校:大州中学校 |
取引態様 | 仲介 |
| 交通 |
広島バス大州車庫前バス停徒歩2分 山陽本線「天神川」駅 徒歩15分 芸備線「矢賀」駅 徒歩20分 |
築年月 | 2003年 1月 |
| 構造 | 鉄骨鉄筋コンクリート | 建ぺい率 | - |
| 容積率 | - | 現状 | 空家 |
| 引渡し | 相談 | 設備 | - |
| 道路 | - | マンション | エスパス大州通り 14階建 8階 |
| 駐車場 | 空無 | 月額負担金 | 管理費・共益費/4,300円 修繕積立金/10,000円 |
| 更新日 | 2026年03月03日 UP! | ||
| 備考 |
●リフォーム2026年1月末完了予定:全室クロス貼替 CF貼替(洗面・WC) 給湯器・洗面台・トイレ・ユニットバス・システムキッチン交換 ●フローリング上貼 ●建具・ハンドル・コンセント交換 ●ダウンライト取替 ●スイッチパネル交換 ●きむらストアー徒歩2分 ●カンナ薬局徒歩2分 ●大洲幼稚園徒歩5分 ●用途地域:近隣商業 ●町会費:150円 |
スマホに 情報を送る |
QRコードを読み取って、 |
リフォームバルコニー
この物件の
取扱い店舗
国土交通大臣 (8) 第004315号
東営業所
広島県安芸郡府中町大須1丁目17-12
「ホームページを見た」と問合せてください
通話無料 0120-412-730
この物件を購入した場合の、月々の支払
い価格の一例です。借り入れを保証する
ものではございません。
円/月
円/年2回
※諸費用は別途必要です。