通話無料0120-412-730
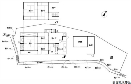
間取り図
Copyright TOTATE Co.,Ltd.All rights reserved.
緑豊かな閑静な住宅街にある、リノベーションベースとして最適な物件!間取りは大家族にも対応可能な6LDK!畑も有り家庭菜園なども可能!お気軽にお問い合わせください!










通話無料0120-412-730
| 所在地 | 安芸郡坂町坂西3丁目管理コード:EH59396 | 土地面積 | 237.51㎡(71.84坪) |
|---|---|---|---|
| 価格 | 50万円 | 建物面積 | 102.48㎡(31坪) |
| 間取り |
6DK+1S(納戸) 1F/DK 4.5帖 1室 1F/和室 8.0帖 1室 1F/洋室 4.5帖 1室 1F/和室 4.5帖 2室 2F/和室 10.0帖 1室 2F/和室 7.5帖 1室 2F/S 1室 |
||
| 交通 | 呉線「坂」駅 徒歩27分 | 学区 |
小学校:坂小学校 中学校:坂中学校 |
| 築年月 | 1920年 1月 | 用途地域 | 第一種中高層住居専用 |
| 構造 | 木造 | 取引態様 | 仲介 |
| 駐車場 | 無 | 建ぺい率 | 60% |
| 容積率 | 200% | セットバック | - |
| 現状 | 空家 | 引渡し | 相談 |
| 設備 |
水道:公営水道 ガス:プロパンガス |
道路 | 西向き 幅員:0.9m |
| 更新日 | 2026年03月07日 UP! | ||
| 備考 |
●趣味部屋・工房・物置向き ●納屋もあり家庭菜園もできます ●建物面積は課税台帳記載面積、表記の建物概要は登記情報と異なります ●現況有姿渡し(売主の契約不適合責任免責) ●前面の道は非道路につき接道なし(再建築不可) ●建物図面・地積測量図なし(境界確定未了) ●下水道未接続 ●水道宅内13mm引込有(前面道路埋設管は共有私設管) ●土砂災害特別警戒区域 ●令和5年度固定資産税:約10,400円 |
スマホに 情報を送る |
QRコードを読み取って、 |
プロパンガス公営水道
この物件の
取扱い店舗
国土交通大臣 (8) 第004315号
東営業所
広島県安芸郡府中町大須1丁目17-12
「ホームページを見た」と問合せてください
通話無料 0120-412-730
この物件を購入した場合の、月々の支払
い価格の一例です。借り入れを保証する
ものではございません。
円/月
円/年2回
※諸費用は別途必要です。