通話無料0120-412-730
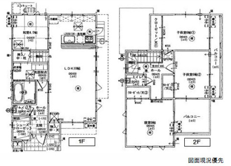
間取り図
Copyright TOTATE Co.,Ltd.All rights reserved.
緑豊かな閑静な住宅街にある、築浅の中古住宅!間取りは4人家族にピッタリの4LDK!地球に優しいオール電化!SIC等収納面も充実!駐車スペースは並列2台分有!












通話無料0120-412-730
| 所在地 | 安芸郡坂町坂東4丁目管理コード:EH58699 | 土地面積 | 171.81㎡(51.97坪) |
|---|---|---|---|
| 価格 | 2,680万円 | 建物面積 | 104.95㎡(31.74坪) |
| 間取り |
4LDK 1F/LDK 18.0帖 1室 1F/和室 4.5帖 1室 2F/洋室 8.0帖 1室 2F/洋室 6.0帖 2室 |
||
| 交通 |
荒神橋バス停徒歩6分 呉線「坂」駅 徒歩15分 |
学区 | 中学校:坂中学校 |
| 築年月 | 2015年 1月 | 用途地域 | 第一種中高層住居専用 |
| 構造 | 木造 | 取引態様 | 仲介 |
| 駐車場 | 有 2台 | 建ぺい率 | 60% |
| 容積率 | 200% | セットバック | - |
| 現状 | 居住中 | 引渡し | 相談 |
| 設備 |
水道:公営水道 トイレ:公共下水 |
道路 | 南西向き 公道 幅員:4.0m |
| 更新日 | 2026年02月18日 UP! | ||
| 備考 |
●オール電化・エコキュート ●枠組壁工法(2×4) ●シューズインクローゼット ●駐車並列2台 ●自然に囲まれた閑静な立地 ●土砂災害警戒区域(一部特別警戒区域) |
スマホに 情報を送る |
QRコードを読み取って、 |
閑静な住宅地公営水道公共下水オール電化システムキッチン対面式キッチントイレ2ヶ所LDK18帖以上
この物件の
取扱い店舗
国土交通大臣 (8) 第004315号
東営業所
広島県安芸郡府中町大須1丁目17-12
「ホームページを見た」と問合せてください
通話無料 0120-412-730
この物件を購入した場合の、月々の支払
い価格の一例です。借り入れを保証する
ものではございません。
円/月
円/年2回
※諸費用は別途必要です。