通話無料0120-521-722
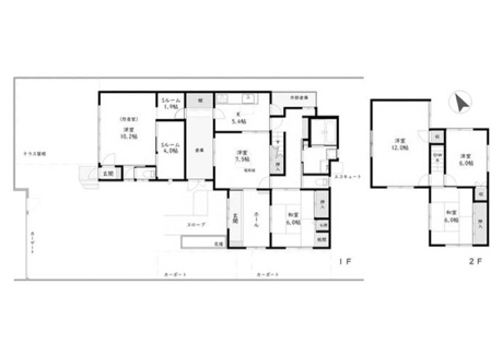
間取り図
Copyright TOTATE Co.,Ltd.All rights reserved.
S50年完成のリフォーム履歴がある物件。
6DK+Sのゆとりある間取りで、防音仕様の部屋も備えており、多目的にご活用いただけます。
宮島が近く、居住用はもちろん、民泊やセカンドハウス等としてもおすすめです。
JR宮島口駅まで徒歩約8分の利便性も魅力です。


















通話無料0120-521-722
| 所在地 | 廿日市市宮島口西2丁目管理コード:BH-63752 | 土地面積 | 304.02㎡(91.96坪) |
|---|---|---|---|
| 価格 | 4,300万円 | 建物面積 | 150.59㎡(45.55坪) |
| 間取り |
6DK+2S(納戸) 1F/DK 5.4帖 1室 1F/洋室 10.2帖 1室 1F/洋室 7.5帖 1室 1F/和室 6.0帖 1室 1F/S 4.0帖 1室 1F/S 1.9帖 1室 2F/洋室 12.0帖 1室 2F/洋室 6.0帖 1室 2F/和室 6.0帖 1室 |
||
| 交通 |
山陽本線「宮島口」駅 徒歩8分 広島電鉄宮島線「広電宮島口」駅 徒歩8分 山陽本線「前空」駅 徒歩22分 |
学区 |
小学校:大野東小学校 中学校:大野東中学校 |
| 築年月 | 1975年 3月 | 用途地域 | 第一種中高層住居専用 |
| 構造 | 木造 | 取引態様 | 仲介 |
| 駐車場 | 有 2台 | 建ぺい率 | 60% |
| 容積率 | 200% | セットバック | - |
| 現状 | 空家 | 引渡し | 相談 |
| 設備 |
水道:公営水道 トイレ:個別浄化槽 |
道路 |
西向き 間口:12.5m 幅員:4.0m 東向き 間口:2.0m 幅員:8.0m |
| 更新日 | 2026年02月27日 UP! | ||
| 備考 |
●宮島フェリーのりばまで徒歩7分 ●オール電化 ●2021年4月防音棟新築 楽器演奏者、動画制作、教室運営、テレワーク、民泊運営等に最適 ●太陽光パネル設置済み ●2016年4月リフォーム:キッチン・浴室・トイレ・壁・床・外壁 ●システムキッチン ●駐車2台可 ●閑静な住宅街 ●EV車充電設備 ●表記土地面積に路地状部分31.37㎡含む |
スマホに 情報を送る |
QRコードを読み取って、 |
閑静な住宅地公営水道個別浄化槽オール電化システムキッチン
この物件の
取扱い店舗
国土交通大臣 (8) 第004315号
西営業所
広島県広島市佐伯区五日市中央4丁目10-11
「ホームページを見た」と問合せてください
通話無料 0120-521-722
この物件を購入した場合の、月々の支払
い価格の一例です。借り入れを保証する
ものではございません。
円/月
円/年2回
※諸費用は別途必要です。