通話無料0120-013-226
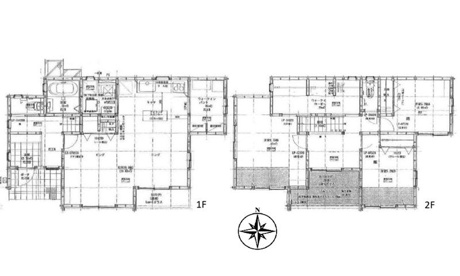
間取り図
Copyright TOTATE Co.,Ltd.All rights reserved.
南向き日当たり良好!ウォークインパントリーもあり家事動線良好です!

















通話無料0120-013-226
| 所在地 | 東広島市高屋町小谷管理コード:EH64293 | 土地面積 | 208.43㎡(63.05坪) |
|---|---|---|---|
| 価格 | 2,000万円 | 建物面積 | 106.57㎡(32.23坪) |
| 間取り |
3LDK 1F/LDK 18.5帖 2F/洋室 8.7帖洋室 5.2帖洋室 5.2帖 |
||
| 交通 | 山陽本線「白市」駅 徒歩19分 | 学区 |
小学校:小谷小学校 中学校:高屋中学校 |
| 築年月 | 2014年 12月 | 用途地域 | - |
| 構造 | 木造 | 取引態様 | 仲介 |
| 駐車場 | 有 2台 | 建ぺい率 | 50% |
| 容積率 | 100% | セットバック | - |
| 現状 | 居住中 | 引渡し | 相談 |
| 設備 |
水道:公営水道 トイレ:集中浄化槽 ガス:プロパンガス |
道路 |
一方 南向き 公道 幅員:6.0m |
| 更新日 | 2026年03月06日 UP! | ||
| 備考 |
-物件のおすすめポイント- ▼立地 ・白市駅 徒歩19分 ・前面道路6mで車の出入りもスムーズ ▼特徴 ・駐車2台可能 ・ウォークインパントリー、ウォークインクローゼット付 ▼周辺環境 ・小谷小学校 約800m ・高屋中学校 約6,000m ・スーパージョージ、セブンイレブン 約2,000m ・山陽道・呉道路ジャンクション 約5,500m ■特例開発団地 ■間口:16m |
スマホに 情報を送る |
QRコードを読み取って、 |
陽当り良好閑静な住宅地室内洗濯機置場プロパンガス公営水道集中浄化槽ガスコンロシステムキッチン温水洗浄便座トイレ2ヶ所浴室1坪以上ウォークインクロゼットTVモニタ付インターホンLDK18帖以上
この物件の
取扱い店舗
国土交通大臣 (8) 第004315号
東広島営業所
広島県東広島市西条中央6丁目12-18
「ホームページを見た」と問合せてください
通話無料 0120-013-226
この物件を購入した場合の、月々の支払
い価格の一例です。借り入れを保証する
ものではございません。
円/月
円/年2回
※諸費用は別途必要です。