通話無料0120-412-730
間取り図
Copyright TOTATE Co.,Ltd.All rights reserved.
2017年にリフォーム済み物件!間取りは大家族にも対応可能な6DK!JR広駅や各商業施設も利用可能な立地も◎!


通話無料0120-412-730
| 所在地 | 呉市広名田2丁目管理コード:EH56120 | 土地面積 | 77.83㎡(23.54坪) |
|---|---|---|---|
| 価格 | 1,390万円 | 建物面積 | 119.56㎡(36.16坪) |
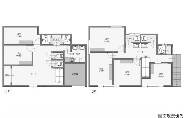
| 間取り |
6K 1F/K 1室 1F/洋室 5.3帖 1室 1F/洋室 4.8帖 1室 2F/洋室 7.2帖 1室 2F/洋室 6.4帖 1室 2F/洋室 6.1帖 1室 2F/洋室 4.6帖 1室 |
||
| 交通 |
王子マテリア前バス停徒歩1分 呉線「広」駅 徒歩10分 |
学区 |
小学校:白岳小学校 中学校:白岳中学校 |
| 築年月 | 1971年 4月 | 用途地域 | 第一種住居 |
| 構造 | 鉄骨造 | 取引態様 | 仲介 |
| 駐車場 | 有 1台 | 建ぺい率 | 60% |
| 容積率 | 200% | セットバック | - |
| 現状 | 居住中 | 引渡し | 相談 |
| 設備 |
水道:公営水道 トイレ:公共下水 ガス:都市ガス |
道路 | 西向き 公道 |
| 更新日 | 2026年05月11日 UP! | ||
| 備考 |
●2017年10月リフォーム完了 設備交換(キッチン・浴室・トイレ)、壁・床 屋根防水工事 ●社員寮や宿泊施設としてもおすすめです ●室内設備が揃っているのですぐ稼働できます ●居室6部屋(個室鍵付)全部屋エアコン・テレビ・冷蔵庫完備 ●トイレ4ヶ所・シャワールーム3ヶ所 温水洗浄便座 ●イオニアミストPRO施工済(酸化チタンによる抗菌) ●駐車:軽自動車1台可 |
スマホに 情報を送る |
QRコードを読み取って、 |
都市ガス公営水道公共下水温水洗浄便座エアコン
この物件の
取扱い店舗
国土交通大臣 (8) 第004315号
東営業所
広島県安芸郡府中町大須1丁目17-12
「ホームページを見た」と問合せてください
通話無料 0120-412-730
この物件を購入した場合の、月々の支払
い価格の一例です。借り入れを保証する
ものではございません。
円/月
円/年2回
※諸費用は別途必要です。