通話無料0120-521-722
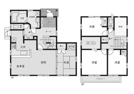
間取り図
Copyright TOTATE Co.,Ltd.All rights reserved.
H14年完成、ダイワハウス施工の軽量鉄骨4LDK注文住宅。
駐車3台可能で、玄関上部は吹抜けとなっており開放的な空間を演出します。
庭付きで陽当たりも良好です。














通話無料0120-521-722
| 所在地 | 広島市佐伯区石内南4丁目管理コード:BH-63824 | 土地面積 | 209.56㎡(63.39坪) |
|---|---|---|---|
| 価格 | 2,590万円 | 建物面積 | 117.35㎡(35.49坪) |
| 間取り |
4LDK 1F/LDK 19.0帖 1室 1F/和室 6.2帖 1室 2F/洋室 8.3帖 1室 2F/洋室 6.2帖 2室 |
||
| 交通 | 石内南4丁目バス停徒歩4分 | 学区 |
小学校:石内小学校 中学校:三和中学校 |
| 築年月 | 2002年 6月 | 用途地域 | 第一種低層住居専用 |
| 構造 | 軽量鉄骨 | 取引態様 | 仲介 |
| 駐車場 | 有 3台 | 建ぺい率 | 50% |
| 容積率 | 100% | セットバック | - |
| 現状 | 居住中 | 引渡し | 相談 |
| 設備 |
水道:公営水道 トイレ:公共下水 ガス:都市ガス |
道路 | 北東向き 公道 幅員:6.0m |
| 更新日 | 2026年03月07日 UP! | ||
| 備考 |
●ライセンスパーク杜の街内の一戸建 ●ダイワハウスの注文軽量鉄骨造 ●3台駐車可能(幅:約5m、奥行:約10m) ●太陽光発電システム ソーラーフロンティア製5.28kw設置済(2022年9月) ●閑静な住宅街 ●陽当たり良好 |
スマホに 情報を送る |
QRコードを読み取って、 |
閑静な住宅地バルコニー都市ガス公営水道公共下水トイレ2ヶ所ウォークインクロゼットLDK18帖以上
この物件の
取扱い店舗
国土交通大臣 (8) 第004315号
西営業所
広島県広島市佐伯区五日市中央4丁目10-11
「ホームページを見た」と問合せてください
通話無料 0120-521-722
この物件を購入した場合の、月々の支払
い価格の一例です。借り入れを保証する
ものではございません。
円/月
円/年2回
※諸費用は別途必要です。