通話無料0120-521-722
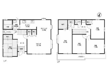
間取り図
Copyright TOTATE Co.,Ltd.All rights reserved.
人気の東観音台団地内に立地。平成2年完成の軽量鉄骨造住宅です。洋風の外観に印象的な伊達出窓が映える、どこかノスタルジックな佇まい。建物面積は約43坪とゆとりがあり、南東向きで陽当たりも良好です。


















通話無料0120-521-722
| 所在地 | 広島市佐伯区観音台4丁目管理コード:BH-63400 | 土地面積 | 186.96㎡(56.55坪) |
|---|---|---|---|
| 価格 | 2,599万円 | 建物面積 | 142.57㎡(43.12坪) |
| 間取り |
5LDK 1F/LDK 21.7帖 1室 1F/和室 6.4帖 1室 2F/洋室 9.1帖 1室 2F/洋室 7.3帖 3室 |
||
| 交通 | 東観音台上バス停徒歩3分 | 学区 |
小学校:五日市観音西小学校 中学校:五日市観音中学校 |
| 築年月 | 1990年 12月 | 用途地域 | 第一種低層住居専用 |
| 構造 | 軽量鉄骨 | 取引態様 | 仲介 |
| 駐車場 | 有 2台 | 建ぺい率 | 50% |
| 容積率 | 100% | セットバック | - |
| 現状 | 空家 | 引渡し | 相談 |
| 設備 |
水道:公営水道 トイレ:公共下水 ガス:都市ガス |
道路 | 南東向き 公道 幅員:6.0m |
| 更新日 | 2026年03月07日 UP! | ||
| 備考 |
●リフォーム販売 ●街並みがきれいな住宅地 ●駐車スペース2台分 ●建坪約43坪・5LDKと大家族にも十分な広さ |
スマホに 情報を送る |
QRコードを読み取って、 |
閑静な住宅地リフォームバルコニー都市ガス公営水道公共下水トイレ2ヶ所
この物件の
取扱い店舗
国土交通大臣 (8) 第004315号
西営業所
広島県広島市佐伯区五日市中央4丁目10-11
「ホームページを見た」と問合せてください
通話無料 0120-521-722
この物件を購入した場合の、月々の支払
い価格の一例です。借り入れを保証する
ものではございません。
円/月
円/年2回
※諸費用は別途必要です。