通話無料0120-521-722
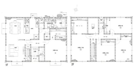
間取り図
Copyright TOTATE Co.,Ltd.All rights reserved.
H28年完成の中古戸建。建物はゆとりの43坪 5LDK+S
1階は8帖洋間がございます。
南西の角地、2世帯住宅としてもご検討ください。




















通話無料0120-521-722
| 所在地 | 広島市佐伯区五日市1丁目管理コード:BH-61515 | 土地面積 | 151.09㎡(45.7坪) |
|---|---|---|---|
| 価格 | 5,180万円 | 建物面積 | 144.50㎡(43.71坪) |
| 間取り |
5LDK 1F/LDK 19.5帖 1室 1F/洋室 8.0帖 1室 2F/洋室 8.7帖 1室 2F/洋室 6.0帖 2室 2F/洋室 5.2帖 1室 |
||
| 交通 |
広島電鉄宮島線「佐伯区役所前」駅 徒歩7分 広島電鉄宮島線「広電五日市」駅 徒歩14分 山陽本線「五日市」駅 徒歩15分 |
学区 |
小学校:五日市小学校 中学校:五日市中学校 |
| 築年月 | 2016年 11月 | 用途地域 | 第一種住居 |
| 構造 | 木造 | 取引態様 | 仲介 |
| 駐車場 | 有 2台 | 建ぺい率 | 60% |
| 容積率 | 200% | セットバック | - |
| 現状 | 居住中 | 引渡し | 相談 |
| 設備 |
水道:公営水道 トイレ:公共下水 |
道路 |
角地 南向き 間口:12.8m 公道 幅員:4.2m 西向き 私道 |
| 更新日 | 2026年03月07日 UP! | ||
| 備考 |
●システムキッチン ●カウンターキッチン ●浄水器 ●食器洗浄乾燥機 ●IHクッキングヒーター ●バス1坪以上 ●複層ガラス ●24時間換気システム ●オール電化 ●ウォークインクローゼット ●シューズインクローゼット ●ディンプルキー ●モニタ付インターホン ●駐車2台可 ●BELS ●私道負担面積:(12.01㎡)持分有 |
スマホに 情報を送る |
QRコードを読み取って、 |
閑静な住宅地公営水道公共下水オール電化24時間換気システム食器洗乾燥機システムキッチン対面式キッチンカウンターキッチン温水洗浄便座トイレ2ヶ所浴室1坪以上ウォークインクロゼットTVモニタ付インターホン複層ガラスディンプルキー平坦地
この物件の
取扱い店舗
国土交通大臣 (8) 第004315号
西営業所
広島県広島市佐伯区五日市中央4丁目10-11
「ホームページを見た」と問合せてください
通話無料 0120-521-722
この物件を購入した場合の、月々の支払
い価格の一例です。借り入れを保証する
ものではございません。
円/月
円/年2回
※諸費用は別途必要です。