ホーム / 買う / 中古戸建 /広島市佐伯区五日市町大字下河内
通話無料0120-521-722
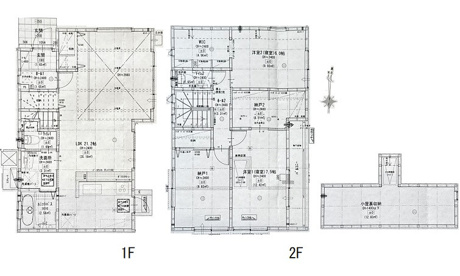
間取り図
Copyright TOTATE Co.,Ltd.All rights reserved.
H23年完成の中古物件。エコキュートは交換済。
堀込車庫です。車やバイクの自転車やタイヤ、サーフボード、ゴルフバッグ、ベビーカーなど大きな荷物を収納しておく倉庫としても利用です。









通話無料0120-521-722
| 所在地 | 広島市佐伯区五日市町大字下河内管理コード:BH-61497 | 土地面積 | 132.21㎡(39.99坪) |
|---|---|---|---|
| 価格 | 1,550万円 | 建物面積 | 141.74㎡(42.87坪) |
| 間取り |
3LDK+1S(納戸) 1F/LDK 21.2帖 1室 2F/洋室 7.5帖 1室 2F/洋室 6.0帖 2室 2F/S 1室 |
||
| 交通 | 彩が丘団地バス停徒歩7分 | 学区 |
小学校:河内小学校 中学校:三和中学校 |
| 築年月 | 2011年 8月 | 用途地域 | - |
| 構造 | 木造 | 取引態様 | 仲介 |
| 駐車場 | 有 2台 | 建ぺい率 | 50% |
| 容積率 | 100% | セットバック | - |
| 現状 | 空家 | 引渡し | 相談 |
| 設備 |
水道:公営水道 トイレ:個別浄化槽 |
道路 | 東向き 幅員:6.0m |
| 更新日 | 2026年03月08日 UP! | ||
| 備考 |
●東南向きで陽当たり眺望良好 ●公園が近く閑静な住宅街で子育てに優しい環境 ●オール電化、IH対面キッチン食洗機、温水洗浄便座(1F・2F)、エコキュートは令和7年1月取替 ●駐車場は片側に電動シャッター ●表記建物面積に地下車庫36.58平米を含む |
スマホに 情報を送る |
QRコードを読み取って、 |
公営水道個別浄化槽食器洗乾燥機システムキッチン
この物件の
取扱い店舗
国土交通大臣 (8) 第004315号
西営業所
広島県広島市佐伯区五日市中央4丁目10-11
「ホームページを見た」と問合せてください
通話無料 0120-521-722
この物件を購入した場合の、月々の支払
い価格の一例です。借り入れを保証する
ものではございません。
円/月
円/年2回
※諸費用は別途必要です。