通話無料0120-521-722
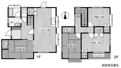
間取り図
Copyright TOTATE Co.,Ltd.All rights reserved.
閑静な住宅街にあるオーナーチェンジ物件です!




















通話無料0120-521-722
| 所在地 | 広島市佐伯区千同3丁目管理コード:BH-61463 | 土地面積 | 123.06㎡(37.22坪) |
|---|---|---|---|
| 価格 | 1,150万円 | 建物面積 | 89.02㎡(26.92坪) |
| 間取り |
4LDK 1F/LDK 12.0帖 1室 1F/和室 6.0帖 1室 2F/洋室 6.7帖 1室 2F/和室 6.0帖 1室 2F/洋室 5.2帖 1室 |
||
| 交通 | 千同バス停徒歩2分 | 学区 |
小学校:五日市観音西小学校 中学校:五日市観音中学校 |
| 築年月 | 1986年 11月 | 用途地域 | 第一種低層住居専用 |
| 構造 | 木造 | 取引態様 | 仲介 |
| 駐車場 | 有 1台 | 建ぺい率 | 50% |
| 容積率 | 100% | セットバック | - |
| 現状 | 空家 | 引渡し | 相談 |
| 設備 |
トイレ:公共下水 ガス:プロパンガス |
道路 |
角地 西向き 南向き |
| 更新日 | 2026年03月07日 UP! | ||
| 備考 |
●閑静な住宅街 ●2方向角地 ●売主の契約不適合責任免責 ●オーナーチェンジ |
スマホに 情報を送る |
QRコードを読み取って、 |
バルコニープロパンガス公共下水
この物件の
取扱い店舗
国土交通大臣 (8) 第004315号
西営業所
広島県広島市佐伯区五日市中央4丁目10-11
「ホームページを見た」と問合せてください
通話無料 0120-521-722
この物件を購入した場合の、月々の支払
い価格の一例です。借り入れを保証する
ものではございません。
円/月
円/年2回
※諸費用は別途必要です。