通話無料0120-521-722
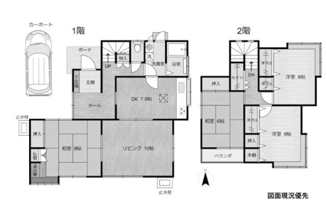
間取り図
Copyright TOTATE Co.,Ltd.All rights reserved.
駐車1台分カーポート付き。リノベーション向き木造2階建4LDK。収納豊富です。









通話無料0120-521-722
| 所在地 | 広島市佐伯区藤の木4丁目管理コード:BH-60744 | 土地面積 | 170.80㎡(51.66坪) |
|---|---|---|---|
| 価格 | 1,080万円 | 建物面積 | 110.95㎡(33.56坪) |
| 間取り |
4LDK 1F/LDK 17.5帖 1室 1F/和室 8.0帖 1室 2F/洋室 6.0帖 2室 2F/和室 6.0帖 1室 |
||
| 交通 | 近隣公園前バス停徒歩3分 | 学区 | 中学校:三和中学校 |
| 築年月 | 1988年 8月 | 用途地域 | 第一種低層住居専用 |
| 構造 | 木造 | 取引態様 | 仲介 |
| 駐車場 | 有 (屋根有) 1台 | 建ぺい率 | 50% |
| 容積率 | 100% | セットバック | - |
| 現状 | 空家 | 引渡し | 相談 |
| 設備 |
水道:公営水道 トイレ:公共下水 ガス:プロパンガス |
道路 | 北向き 公道 幅員:5.4m |
| 更新日 | 2026年03月07日 UP! | ||
| 備考 |
●光と緑の溢れる閑静な住宅街 ●約50坪の敷地に建つ2階建採光の良いリビング、独立キッチン ●お掃除のしやすいガラストップコンロ ●温水洗浄便座付きトイレ ●各居室、屋根裏、廊下など収納が豊富な間取り ●浴室には追い焚き機能が嬉しいオートバス付 ●お庭付きなのでガーデニングなども楽しめます |
スマホに 情報を送る |
QRコードを読み取って、 |
閑静な住宅地ベランダプロパンガス公営水道公共下水追焚機能浴室温水洗浄便座
この物件の
取扱い店舗
国土交通大臣 (8) 第004315号
西営業所
広島県広島市佐伯区五日市中央4丁目10-11
「ホームページを見た」と問合せてください
通話無料 0120-521-722
この物件を購入した場合の、月々の支払
い価格の一例です。借り入れを保証する
ものではございません。
円/月
円/年2回
※諸費用は別途必要です。