通話無料0120-521-722
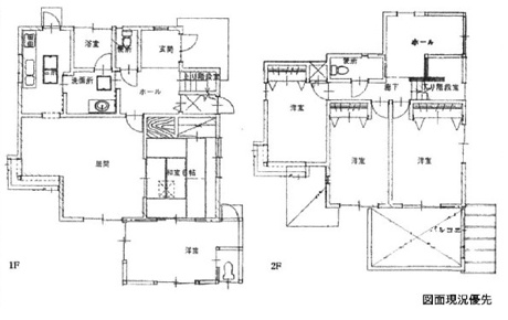
間取り図
Copyright TOTATE Co.,Ltd.All rights reserved.
敷地ゆったり58坪!日当たり良好な5LDK!駐車場カーポート付です!











通話無料0120-521-722
| 所在地 | 広島市佐伯区河内南1丁目管理コード:BH-57496 | 土地面積 | 192.61㎡(58.26坪) |
|---|---|---|---|
| 価格 | 1,580万円 | 建物面積 | 114.81㎡(34.73坪) |
| 間取り |
5LDK 1F/K 1室 1F/LD 1室 1F/洋室 1室 1F/和室 1室 2F/洋室 3室 |
||
| 交通 | 彩が丘団地バス停徒歩2分 | 学区 | 中学校:三和中学校 |
| 築年月 | 1991年 10月 | 用途地域 | 第一種低層住居専用 |
| 構造 | 木造 | 取引態様 | 仲介 |
| 駐車場 | 有 | 建ぺい率 | 50% |
| 容積率 | 100% | セットバック | - |
| 現状 | 空家 | 引渡し | 相談 |
| 設備 |
水道:公営水道 トイレ:公共下水 ガス:都市ガス |
道路 | 北西向き 公道 幅員:5.0m |
| 更新日 | 2026年03月08日 UP! | ||
| 備考 |
●外装改修済 ●カーポート付 ※現況渡し ※増築部分未登記 |
スマホに 情報を送る |
QRコードを読み取って、 |
陽当り良好閑静な住宅地都市ガス公営水道公共下水
この物件の
取扱い店舗
国土交通大臣 (8) 第004315号
西営業所
広島県広島市佐伯区五日市中央4丁目10-11
「ホームページを見た」と問合せてください
通話無料 0120-521-722
この物件を購入した場合の、月々の支払
い価格の一例です。借り入れを保証する
ものではございません。
円/月
円/年2回
※諸費用は別途必要です。