通話無料0120-412-730
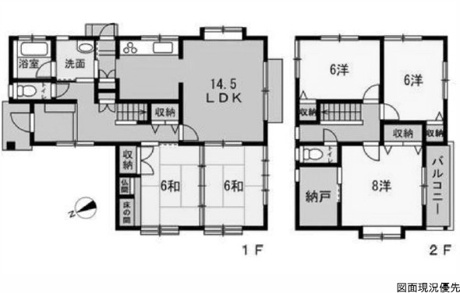
間取り図
Copyright TOTATE Co.,Ltd.All rights reserved.
閑静な住宅街にある中古住宅!間取りは5LDK+S!地球にやさしいオール電化!駐車スペースは2台分有!JR瀬野駅や各商業施設が利用可能なのも◎!内覧も可能ですお気軽にお問い合わせください!












通話無料0120-412-730
| 所在地 | 広島市安芸区瀬野西1丁目管理コード:EH63113 | 土地面積 | 164.19㎡(49.66坪) |
|---|---|---|---|
| 価格 | 1,880万円 | 建物面積 | 120.06㎡(36.31坪) |
| 間取り |
5LDK+1S(納戸) 1F/LDK 14.5帖 1室 1F/和室 6.0帖 2室 2F/洋室 8.0帖 1室 2F/洋室 6.0帖 2室 2F/S 1室 |
||
| 交通 |
みどり中街バス停徒歩3分 みどり坂第一公園北バス停徒歩4分 山陽本線「瀬野」駅 徒歩9分 |
学区 |
小学校:みどり坂小学校 中学校:瀬野川東中学校 |
| 築年月 | 1998年 5月 | 用途地域 | 第一種低層住居専用 |
| 構造 | 木造 | 取引態様 | 仲介 |
| 駐車場 | 有 2台 | 建ぺい率 | 50% |
| 容積率 | 100% | セットバック | - |
| 現状 | 空家 | 引渡し | 相談 |
| 設備 |
水道:公営水道 トイレ:公共下水 |
道路 | 北向き 公道 幅員:6.0m |
| 更新日 | 2026年03月07日 UP! | ||
| 備考 |
●オール電化 ●収納豊富な5LDK ●室内綺麗にお使いです ●みどり坂こども園徒歩5分 ●みどり坂小学校徒歩6分 ●ショージみどり坂店徒歩5分 ●南側段落ちのため陽当り良好 ●売主の契約不適合責任は免責 |
スマホに 情報を送る |
QRコードを読み取って、 |
バルコニー公営水道公共下水オール電化
この物件の
取扱い店舗
国土交通大臣 (8) 第004315号
東営業所
広島県安芸郡府中町大須1丁目17-12
「ホームページを見た」と問合せてください
通話無料 0120-412-730
この物件を購入した場合の、月々の支払
い価格の一例です。借り入れを保証する
ものではございません。
円/月
円/年2回
※諸費用は別途必要です。