通話無料0120-412-730
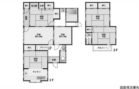
間取り図
Copyright TOTATE Co.,Ltd.All rights reserved.
閑静な住宅街にある、リノベーションベースとして最適な物件!間取りは4人家族にピッタリの4DK!JR中野東駅や各商業施設も利用可能な立地も◎!















通話無料0120-412-730
| 所在地 | 広島市安芸区中野4丁目管理コード:EH59767 | 土地面積 | 157.15㎡(47.53坪) |
|---|---|---|---|
| 価格 | 400万円 | 建物面積 | 102.67㎡(31.05坪) |
| 間取り |
6DK 1F/DK 1室 1F/和室 6.0帖 2室 1F/洋室 6.0帖 1室 1F/洋室 4.5帖 1室 2F/和室 6.0帖 2室 |
||
| 交通 |
山陽本線「中野東」駅 徒歩14分 山陽本線「安芸中野」駅 徒歩17分 |
学区 |
小学校:中野小学校 中学校:瀬野川中学校 |
| 築年月 | 1964年 12月 | 用途地域 | 第一種住居 |
| 構造 | 木造 | 取引態様 | 仲介 |
| 駐車場 | 有 1台 | 建ぺい率 | 60% |
| 容積率 | 200% | セットバック | - |
| 現状 | 空家 | 引渡し | 相談 |
| 設備 |
水道:公営水道 ガス:プロパンガス |
道路 | 南東向き 私道 幅員:2.0m |
| 更新日 | 2026年03月07日 UP! | ||
| 備考 |
●物件北側に1台駐車可(車種による) ●南側に畑有(賃貸中) ●南側道路に面す ●Aコープ中野店:約414m ●現状有姿での引き渡し ●売主の契約不適合責任免責 ●4DK ●間取り図無し(間取り詳細は確認中) |
スマホに 情報を送る |
QRコードを読み取って、 |
プロパンガス公営水道
この物件の
取扱い店舗
国土交通大臣 (8) 第004315号
東営業所
広島県安芸郡府中町大須1丁目17-12
「ホームページを見た」と問合せてください
通話無料 0120-412-730
この物件を購入した場合の、月々の支払
い価格の一例です。借り入れを保証する
ものではございません。
円/月
円/年2回
※諸費用は別途必要です。