通話無料0120-412-730
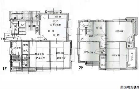
間取り図
Copyright TOTATE Co.,Ltd.All rights reserved.
緑豊かな閑静な住宅街にある、リノベーションベースとして最適な物件!間取りは4人家族にピッタリの4LDK!地球に優しいオール電化!内覧も可能です、お気軽にお問い合わせください!








通話無料0120-412-730
| 所在地 | 広島市安芸区阿戸町管理コード:EH59014 | 土地面積 | 136.05㎡(41.15坪) |
|---|---|---|---|
| 価格 | 400万円 | 建物面積 | 86.53㎡(26.17坪) |
| 間取り |
5DK 1F/DK 8.0帖 1室 1F/和室 6.0帖 2室 2F/洋室 6.0帖 1室 2F/和室 6.0帖 1室 2F/洋室 4.5帖 1室 |
||
| 交通 | 長門路橋バス停徒歩4分 | 学区 | 中学校:阿戸中学校 |
| 築年月 | 1989年 9月 | 用途地域 | - |
| 構造 | 木造 | 取引態様 | 仲介 |
| 駐車場 | 有 3台 | 建ぺい率 | 70% |
| 容積率 | 400% | セットバック | - |
| 現状 | 空家 | 引渡し | 相談 |
| 設備 |
水道:公営水道 トイレ:公共下水 |
道路 | 東向き 私道 幅員:4.0m |
| 更新日 | 2026年03月08日 UP! | ||
| 備考 |
●8帖DKと6帖和室を14帖LDKに変更 ●オール電化 ●私道負担面積97.63㎡(持分1/4)有 ●エコキュートリース代:4,158円/月 |
スマホに 情報を送る |
QRコードを読み取って、 |
公営水道公共下水オール電化
この物件の
取扱い店舗
国土交通大臣 (8) 第004315号
東営業所
広島県安芸郡府中町大須1丁目17-12
「ホームページを見た」と問合せてください
通話無料 0120-412-730
この物件を購入した場合の、月々の支払
い価格の一例です。借り入れを保証する
ものではございません。
円/月
円/年2回
※諸費用は別途必要です。