通話無料0120-412-760
間取り図
Copyright TOTATE Co.,Ltd.All rights reserved.
築浅のきれいな中古戸建! ひろ~い19帖のリビング! 収納充実、使い勝手の良い間取3LDK+WIC! オール電化のエコ住宅です! 内覧できます。












通話無料0120-412-760
| 所在地 | 広島市安佐北区三入7丁目管理コード:CH5501;58848; | 土地面積 | 176.33㎡(53.33坪) |
|---|---|---|---|
| 価格 | 1,880万円 | 建物面積 | 99.36㎡(30.05坪) |
| 間取り |
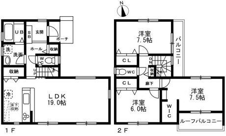
3LDK 1F/LDK 19.0帖 1室 2F/洋室 7.5帖 2室 2F/洋室 6.0帖 1室 |
||
| 交通 | 桐陽台入口バス停徒歩18分 | 学区 |
小学校:三入小学校 中学校:三入中学校 |
| 築年月 | 2021年 12月 | 用途地域 | 第一種低層住居専用 |
| 構造 | 木造 | 取引態様 | 専任媒介 |
| 駐車場 | 有 2台 | 建ぺい率 | 50% |
| 容積率 | 100% | セットバック | - |
| 現状 | 居住中 | 引渡し | 相談 |
| 設備 | トイレ:公共下水 | 道路 | 北向き 公道 幅員:4.0m |
| 更新日 | 2026年03月01日 UP! | ||
| 備考 |
※オール電化 ※駐車場:並列2台可 |
スマホに 情報を送る |
QRコードを読み取って、 |
陽当り良好閑静な住宅地バリアフリーバルコニー公共下水オール電化24時間換気システム2面バルコニーシステムキッチン対面式キッチン浴室乾燥機温水洗浄便座トイレ2ヶ所ウォークインクロゼット収納豊富TVモニタ付インターホン複層ガラスディンプルキー住戸内覧可能
この物件の
取扱い店舗
国土交通大臣 (8) 第004315号
北営業所
広島県広島市安佐南区緑井5丁目10-16
「ホームページを見た」と問合せてください
通話無料 0120-412-760
この物件を購入した場合の、月々の支払
い価格の一例です。借り入れを保証する
ものではございません。
円/月
円/年2回
※諸費用は別途必要です。