通話無料0120-333-222
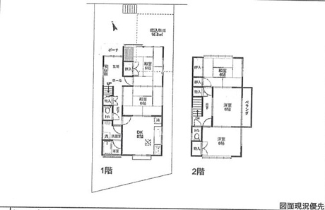
間取り図
Copyright TOTATE Co.,Ltd.All rights reserved.
【三滝本町1丁目 土地37坪の5DK 駐車1台可能 前面道路広々5m!】JR三滝駅まで徒歩11分です。

















通話無料0120-333-222
| 所在地 | 広島市西区三滝本町1丁目管理コード:AH-63509 | 土地面積 | 123.51㎡(37.36坪) |
|---|---|---|---|
| 価格 | 1,400万円 | 建物面積 | 87.21㎡(26.38坪) |
| 間取り |
5DK 1F/DK 8.0帖 1室 1F/和室 6.0帖 2室 2F/洋室 6.0帖 2室 2F/和室 6.0帖 1室 |
||
| 交通 |
可部線「三滝」駅 徒歩11分 山陽本線「横川」駅 徒歩24分 広島電鉄横川線「横川一丁目」駅 徒歩27分 |
学区 |
小学校:三篠小学校 中学校:中広中学校 |
| 築年月 | 1987年 7月 | 用途地域 | 第一種低層住居専用 |
| 構造 | 木造 | 取引態様 | 仲介 |
| 駐車場 | - | 建ぺい率 | 50% |
| 容積率 | 100% | セットバック | - |
| 現状 | 空家 | 引渡し | 相談 |
| 設備 |
水道:公営水道 トイレ:公共下水 ガス:プロパンガス |
道路 | 北東向き 私道 幅員:5.0m |
| 更新日 | 2026年03月03日 UP! | ||
| 備考 | ●堀込車庫:16.8㎡ | スマホに 情報を送る |
QRコードを読み取って、 |
陽当り良好フローリングベランダプロパンガス公営水道公共下水システムキッチン浴槽
この物件の
取扱い店舗
国土交通大臣 (8) 第004315号
本店営業部
広島県広島市中区国泰寺町2丁目4-7 トータテビル 2F
「ホームページを見た」と問合せてください
通話無料 0120-333-222
この物件を購入した場合の、月々の支払
い価格の一例です。借り入れを保証する
ものではございません。
円/月
円/年2回
※諸費用は別途必要です。