通話無料0120-333-222
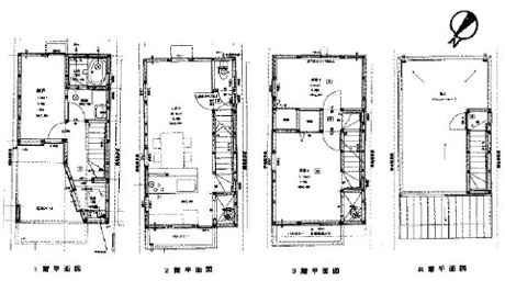
間取り図
Copyright TOTATE Co.,Ltd.All rights reserved.
【庚午南1丁目 スーパーフジまで徒歩5分!」屋上のある3階建、室内外ともに丁寧に使用されております。



















通話無料0120-333-222
| 所在地 | 広島市西区庚午南1丁目管理コード:AH-61949 | 土地面積 | 45.15㎡(13.65坪) |
|---|---|---|---|
| 価格 | 3,380万円 | 建物面積 | 70.06㎡(21.19坪) |
| 間取り |
2LDK+1S(納戸) 1F/S 4.4帖 1室 2F/LDK 12.4帖 1室 3F/洋室 6.8帖 1室 3F/洋室 5.2帖 1室 |
||
| 交通 |
庚午住宅入口バス停徒歩8分 広島電鉄宮島線「古江」駅 徒歩15分 広島電鉄宮島線「草津」駅 徒歩18分 |
学区 |
小学校:草津小学校 中学校:庚午中学校 |
| 築年月 | 2020年 3月 | 用途地域 | 第一種住居 |
| 構造 | 木造 | 取引態様 | 仲介 |
| 駐車場 | 有 | 建ぺい率 | 60% |
| 容積率 | 160% | セットバック | - |
| 現状 | 居住中 | 引渡し | 相談 |
| 設備 |
水道:公営水道 トイレ:公共下水 ガス:都市ガス |
道路 | 北西向き 公道 幅員:4.0m |
| 更新日 | 2026年03月10日 UP! | ||
| 備考 |
●室内外ともに丁寧使用されています ●スーパーフジまで徒歩5分 |
スマホに 情報を送る |
QRコードを読み取って、 |
陽当り良好閑静な住宅地フローリングバルコニー都市ガス公営水道公共下水ビルトガレージシステムキッチン対面式キッチン浴室乾燥機温水洗浄便座洗面台ユニットバス浴槽複層ガラス平坦地完成済み
この物件の
取扱い店舗
国土交通大臣 (8) 第004315号
本店営業部
広島県広島市中区国泰寺町2丁目4-7 トータテビル 2F
「ホームページを見た」と問合せてください
通話無料 0120-333-222
この物件を購入した場合の、月々の支払
い価格の一例です。借り入れを保証する
ものではございません。
円/月
円/年2回
※諸費用は別途必要です。