通話無料0120-333-222
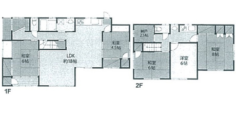
間取り図
Copyright TOTATE Co.,Ltd.All rights reserved.
駐車平面2台可能です!緑を身近に感じる閑静な住宅地で休日は穏やかに過ごせそうですね♪空家ですのでお気軽にご見学していただけます!









通話無料0120-333-222
| 所在地 | 広島市西区三滝本町1丁目管理コード:AH-6834 | 土地面積 | 216.93㎡(65.62坪) |
|---|---|---|---|
| 価格 | 1,380万円 | 建物面積 | 124.84㎡(37.76坪) |
| 間取り |
6LDK+1S(納戸) 1F/LDK 18.0帖 1室 1F/和室 6.0帖 1室 1F/和室 4.5帖 1室 2F/和室 8.0帖 1室 2F/和室 6.0帖 1室 2F/洋室 6.0帖 1室 2F/S 2.5帖 1室 |
||
| 交通 |
可部線「三滝」駅 徒歩16分 山陽本線「横川」駅 徒歩29分 |
学区 |
小学校:三篠小学校 中学校:中広中学校 |
| 築年月 | 1976年 10月 | 用途地域 | 第一種低層住居専用 |
| 構造 | 木造 | 取引態様 | 専任媒介 |
| 駐車場 | 有 | 建ぺい率 | 50% |
| 容積率 | 100% | セットバック | - |
| 現状 | 空家 | 引渡し | 相談 |
| 設備 |
水道:公営水道 トイレ:公共下水 ガス:都市ガス |
道路 | 北向き 公道 幅員:6.0m |
| 更新日 | 2026年03月10日 UP! | ||
| 備考 |
●H5.4 2階増築 ●2階にミニキッチン・洗面台有 |
スマホに 情報を送る |
QRコードを読み取って、 |
閑静な住宅地都市ガス公営水道公共下水
この物件の
取扱い店舗
国土交通大臣 (8) 第004315号
本店営業部
広島県広島市中区国泰寺町2丁目4-7 トータテビル 2F
「ホームページを見た」と問合せてください
通話無料 0120-333-222
この物件を購入した場合の、月々の支払
い価格の一例です。借り入れを保証する
ものではございません。
円/月
円/年2回
※諸費用は別途必要です。