通話無料0120-333-222
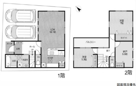
間取り図
Copyright TOTATE Co.,Ltd.All rights reserved.
【高須1丁目 未入居物件 オール電化エコキュート!車2台可】広電高須電停まで徒歩5分と便利の良い物件です。



















通話無料0120-333-222
| 所在地 | 広島市西区高須1丁目管理コード:AH-63974 | 土地面積 | 93.51㎡(28.28坪) |
|---|---|---|---|
| 価格 | 5,180万円 | 建物面積 | 90.46㎡(27.36坪) |
| 間取り |
2LDK+1S(納戸) 1F/LDK 18.1帖 1室 2F/洋室 7.0帖 1室 2F/洋室 5.3帖 1室 2F/S 5.5帖 1室 |
||
| 交通 |
広島電鉄宮島線「高須」駅 徒歩5分 広島電鉄宮島線「東高須」駅 徒歩5分 庚午北2丁目バス停徒歩7分 |
学区 |
小学校:高須小学校 中学校:古田中学校 |
| 築年月 | 2025年 3月 | 用途地域 | 第一種住居 |
| 構造 | 木造 | 取引態様 | 仲介 |
| 駐車場 | 有 2台 | 建ぺい率 | 60% |
| 容積率 | 200% | セットバック | - |
| 現状 | 空家 | 引渡し | 相談 |
| 設備 |
水道:公営水道 トイレ:公共下水 |
道路 |
北西向き 公道 幅員:5.9m 北東向き 公道 幅員:4.0m |
| 更新日 | 2026年03月10日 UP! | ||
| 備考 |
●建築後未入居 ●オール電化住宅 ●省エネで地球にやさしいエコキュートを設置 ●対面式キッチンでお子様にも目が届き安心 ●食器洗い乾燥機 ●浴室暖房換気乾燥機 ●オートバス ●温水洗浄トイレ ●IHクッキングヒーター |
スマホに 情報を送る |
QRコードを読み取って、 |
陽当り良好閑静な住宅地フローリングバルコニー公営水道公共下水オール電化食器洗乾燥機システムキッチン対面式キッチンカウンターキッチン浴室乾燥機温水洗浄便座洗面台ユニットバス浴槽床下収納TVモニタ付インターホン複層ガラスディンプルキー平坦地LDK18帖以上完成済み
この物件の
取扱い店舗
国土交通大臣 (8) 第004315号
本店営業部
広島県広島市中区国泰寺町2丁目4-7 トータテビル 2F
「ホームページを見た」と問合せてください
通話無料 0120-333-222
この物件を購入した場合の、月々の支払
い価格の一例です。借り入れを保証する
ものではございません。
円/月
円/年2回
※諸費用は別途必要です。