通話無料0120-412-730
間取り図
Copyright TOTATE Co.,Ltd.All rights reserved.
平坦地の閑静な住宅街にある中古住宅!2世帯や大家族にも対応可能な間取り!リノベーションベースとして最適な物件!JR矢賀駅や各商業施設が利用可能なのも◎!内覧も可能ですお気軽にお問い合わせください!
















通話無料0120-412-730
| 所在地 | 広島市東区中山東1丁目管理コード:AH62972 | 土地面積 | 115.50㎡(34.93坪) |
|---|---|---|---|
| 価格 | 2,530万円 | 建物面積 | 187.14㎡(56.6坪) |
| 間取り |
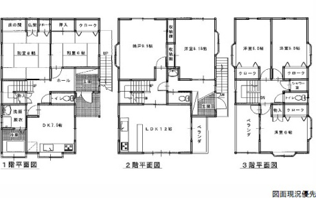
6LDK+1S(納戸) 1F/DK 7.5帖 1室 1F/和室 8.0帖 1室 1F/和室 6.0帖 1室 2F/LDK 12.0帖 1室 2F/洋室 8.1帖 1室 2F/S 9.5帖 1室 3F/洋室 6.5帖 2室 3F/洋室 6.0帖 1室 |
||
| 交通 |
中山中町バス停徒歩6分 芸備線「矢賀」駅 徒歩20分 |
学区 |
小学校:中山小学校 中学校:二葉中学校 |
| 築年月 | 1996年 12月 | 用途地域 | 第一種住居 |
| 構造 | 木造 | 取引態様 | 仲介 |
| 駐車場 | 有 | 建ぺい率 | 60% |
| 容積率 | 200% | セットバック | - |
| 現状 | 空家 | 引渡し | 相談 |
| 設備 |
水道:公営水道 トイレ:公共下水 |
道路 | 東向き 公道 幅員:6.5m |
| 更新日 | 2026年03月09日 UP! | ||
| 備考 |
●閑静な住宅地 ●3階建 ●多人数世帯向き ●事務所兼用住宅仕様 ●令和7年度固定資産税額:78,342円 |
スマホに 情報を送る |
QRコードを読み取って、 |
閑静な住宅地公営水道公共下水
この物件の
取扱い店舗
国土交通大臣 (8) 第004315号
東営業所
広島県安芸郡府中町大須1丁目17-12
「ホームページを見た」と問合せてください
通話無料 0120-412-730
この物件を購入した場合の、月々の支払
い価格の一例です。借り入れを保証する
ものではございません。
円/月
円/年2回
※諸費用は別途必要です。