通話無料0120-412-730
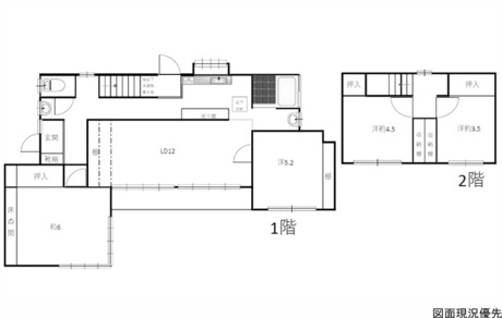
間取り図
Copyright TOTATE Co.,Ltd.All rights reserved.
閑静な住宅街にあるリノベーションベースとして最適な物件!間取りは4人家族にピッタリの4LDK!内覧もご予約頂ければ可能です!










通話無料0120-412-730
| 所在地 | 広島市東区矢賀2丁目管理コード:AH57358 | 土地面積 | 215.57㎡(65.2坪) |
|---|---|---|---|
| 価格 | 450万円 | 建物面積 | 83.08㎡(25.13坪) |
| 間取り |
4LDK 1F/LDK 12.0帖 1室 1F/和室 6.0帖 1室 1F/洋室 5.2帖 1室 2F/洋室 4.5帖 1室 2F/洋室 3.5帖 1室 |
||
| 交通 |
芸備線「矢賀」駅 徒歩4分 山陽本線「天神川」駅 徒歩19分 |
学区 |
小学校:矢賀小学校 中学校:二葉中学校 |
| 築年月 | 1966年 11月 | 用途地域 | 第一種住居 |
| 構造 | 木造 | 取引態様 | 仲介 |
| 駐車場 | 無 | 建ぺい率 | 60% |
| 容積率 | 200% | セットバック | - |
| 現状 | 空家 | 引渡し | 相談 |
| 設備 |
水道:公営水道 トイレ:公共下水 ガス:都市ガス |
道路 | 南東向き 間口:16.0m 公道 |
| 更新日 | 2026年04月14日 UP! | ||
| 備考 |
●自己使用にも賃貸やシェアハウスにもできます ●JR矢賀駅まで徒歩4分の立地 ●日当り良好 閑静な住宅街 ●追焚機能 浴室乾燥機 ●温水洗浄便座 ●システムキッチン コンロ三口 ●床下収納 全居室収納 照明器具付 出窓 ●二世帯住宅 ●前面道路は2項2号「但し書き道路」 ●土砂災害警戒区域 ●道路:南西3.2m~3.8m ●間口:16.0m |
スマホに 情報を送る |
QRコードを読み取って、 |
陽当り良好閑静な住宅地二世帯住宅出窓都市ガス公営水道公共下水システムキッチン追焚機能浴室浴室乾燥機温水洗浄便座床下収納
この物件の
取扱い店舗
国土交通大臣 (8) 第004315号
東営業所
広島県安芸郡府中町大須1丁目17-12
「ホームページを見た」と問合せてください
通話無料 0120-412-730
この物件を購入した場合の、月々の支払
い価格の一例です。借り入れを保証する
ものではございません。
円/月
円/年2回
※諸費用は別途必要です。